EasyManua.ls Logo

Danfoss ECL Comfort 210

Danfoss ECL Comfort 210
28 pages
To Next Page IconTo Next Page
To Next Page IconTo Next Page
To Previous Page IconTo Previous Page
To Previous Page IconTo Previous Page
Loading...
21
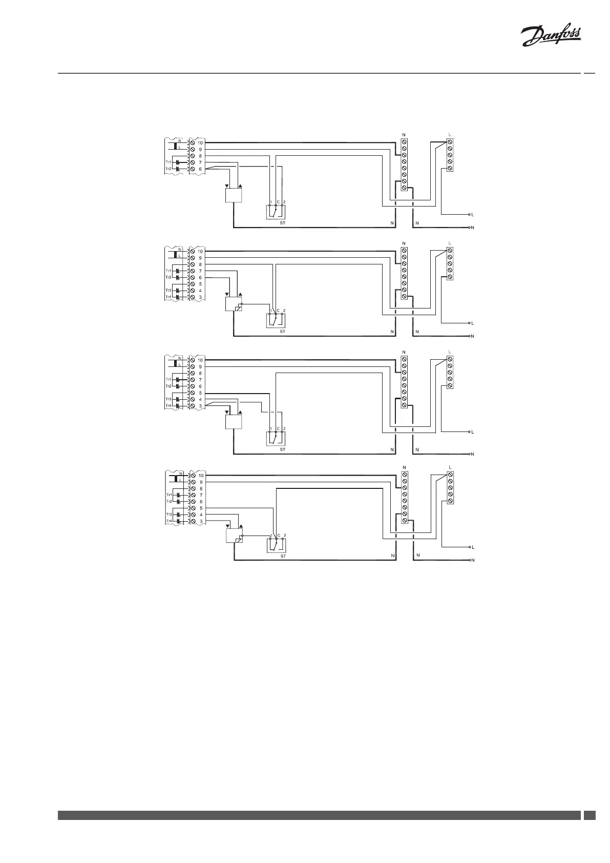
230 V a.c. / 24 V a.c. safety thermostat
1-step closing
Danfoss
87H2105.10
ECL
210 / 310
M1
Danfoss
87H2107.10
ECL
210 / 310
M1
Danfoss
87H2106.10
ECL
210 / 310
M2
ECL 210 / 310
Danfoss
87H2108.10
M2
Mounting Guide ECL Comfort 210/310, A275/A375
Danfoss District Energy VI.GU.N3.00 DEN-SMT/DK

Other manuals for Danfoss ECL Comfort 210

Related product manuals