EasyManua.ls Logo

Danfoss ECL Comfort 310

Danfoss ECL Comfort 310
32 pages
To Next Page IconTo Next Page
To Next Page IconTo Next Page
To Previous Page IconTo Previous Page
To Previous Page IconTo Previous Page
Loading...
11
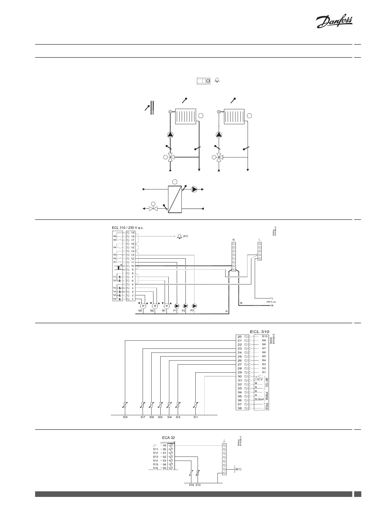
P330.7
Danfoss
87H1216.10
ECL 310
A1
+ECA 32
S13
1
M2
P2
S4
S6
S1
S14
2
M3
P3
S9
S7
M
S3
P1
S5
M1
Mounting Guide ECL Comfort 310, P330
Danfoss District Energy VI.GU.P2.00 DEN-SMT/DK

Other manuals for Danfoss ECL Comfort 310

Related product manuals