EasyManua.ls Logo

Danfoss VLT 2840 - Quick Setup Guide; General Warning and Safety; Installation Steps; Programming Motor Parameters

Danfoss VLT 2840
28 pages
To Next Page IconTo Next Page
To Next Page IconTo Next Page
To Previous Page IconTo Previous Page
To Previous Page IconTo Previous Page
Loading...
VL 2800 Series
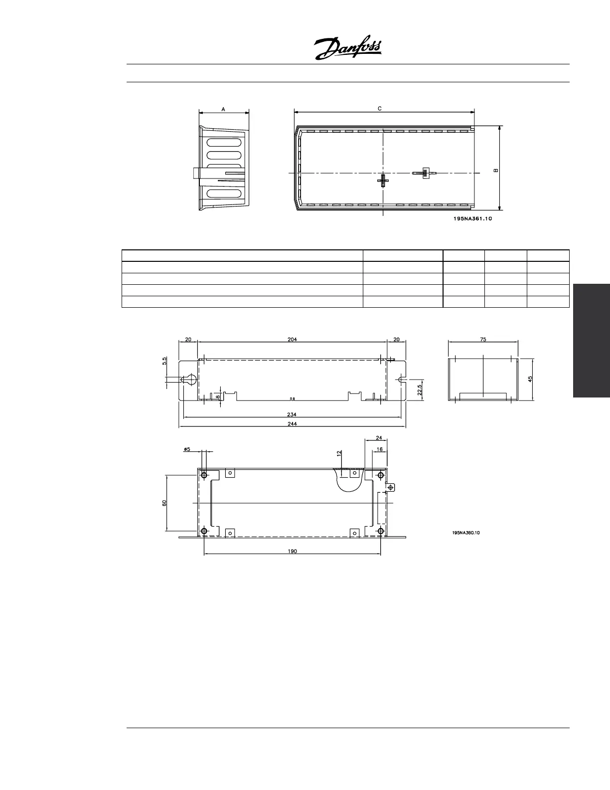
Installation
Dimensions
Typ e Code number A B C
VLT 2803-2815 200-240 V, VLT 2805-2815 380-480 V 195N2118 47 80 170
VLT 2822 200-240 V, VLT 2822-2840 380-480 V 195N2119 47 95 170
VLT 2840 200-240 V, VLT 2855-2875 380-480 V 195N2120 47 145 170
VLT 2880-2882 380-480 V 195N2126 47 205 245
EMC filter for long motor cables
192H4719
MG.28.A8.22 - VLT is a registered Danfoss trademark
7

Other manuals for Danfoss VLT 2840

Related product manuals