EasyManua.ls Logo

Danfoss VLT 5102 - Page 59

Danfoss VLT 5102
240 pages
Print Icon
To Next Page IconTo Next Page
To Next Page IconTo Next Page
To Previous Page IconTo Previous Page
To Previous Page IconTo Previous Page
Loading...
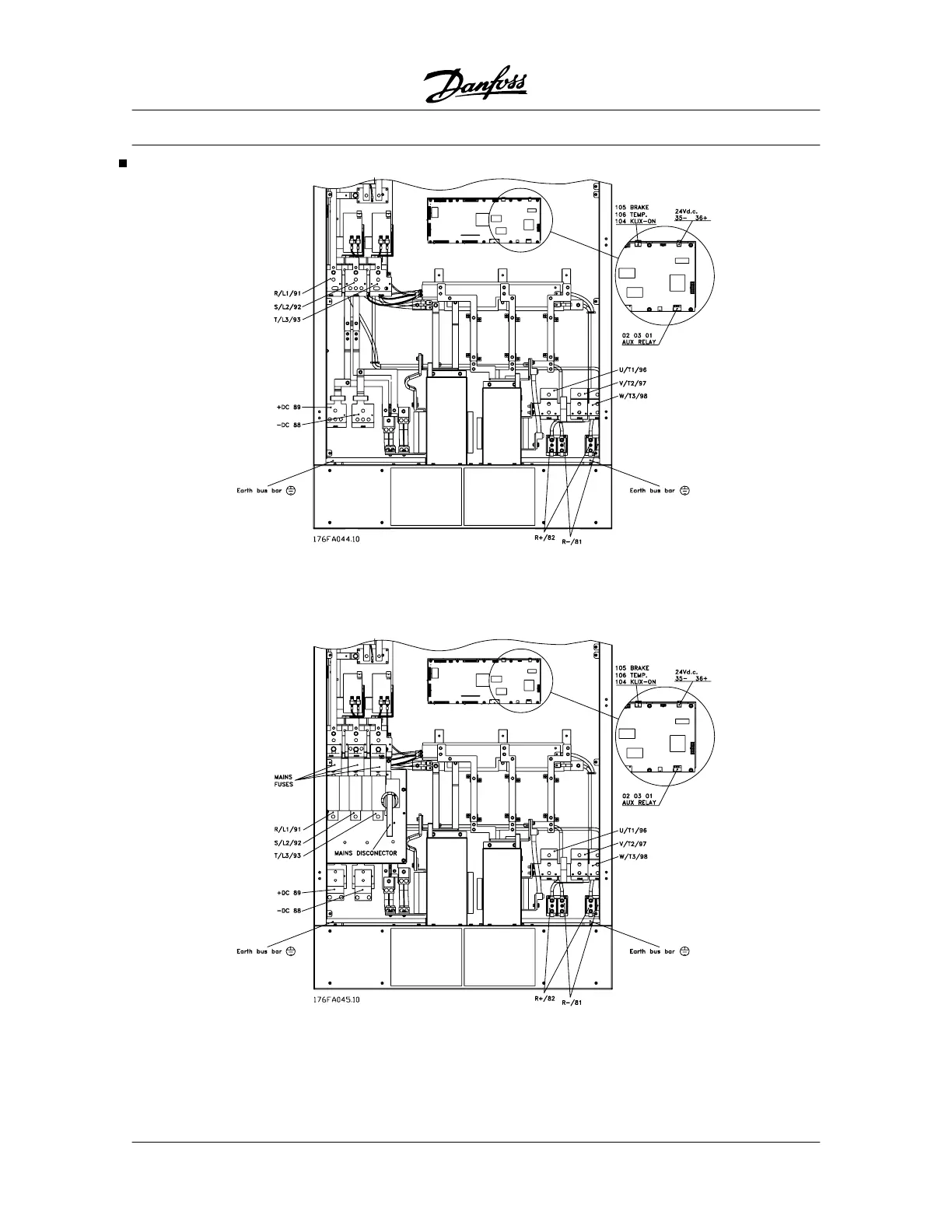
Electrical installation, power cables
Compact IP 00/Nema 1 (IP 20)/IP 54
without disconnector and mains fuses
VLT 5300 - 5500 380 - 500 V
Compact IP 00/Nema 1 (IP 20)/IP 54
with disconnector and mains fuses
VLT 5300 - 5500 380 - 500 V
VLT
®
5000 Series
56 MG.51.C5.22 - VLT
p
is a registered Danfoss trademark.

Table of Contents

Other manuals for Danfoss VLT 5102

Related product manuals