EasyManua.ls Logo

Davey StarFlo DSF150 - Typisch Installatieschema; Aansluiting Van de Slangen

Davey StarFlo DSF150
84 pages
Print Icon
To Next Page IconTo Next Page
To Next Page IconTo Next Page
To Previous Page IconTo Previous Page
To Previous Page IconTo Previous Page
Loading...
65
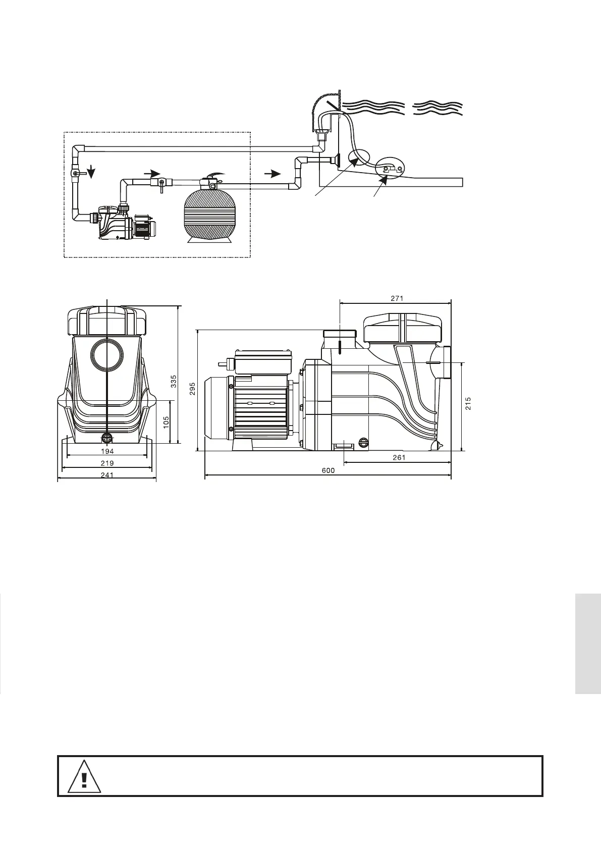
Typisch installatieschema
Waterpomp
Zandfilter
Vacuüm slang Vacuüm kop
Afmetingen
Aansluiting van de slangen
Le pompe per piscina StarFlo sono dotate di bocchettoni per il collegamento alle tubazioni
dalla piscina. I seguenti modelli sono progettati per accettare tubi europei in PVC da 50 e 63 mm:
* DSF150(CE) * DSF420(CE)
* DSF200(CE) * DSF3003F(CE)
* DSF250(CE) * DSF4203F(CE)
* DSF300(CE)
I seguenti modelli sono progettati per accettare tubi nominali in PVC da 40 e50 mm:
* DSF150 * DSF420
* DSF200 * DSF3003F
* DSF250 * DSF4203F
* DSF300
Gebruik van slangen die kleiner zijn dan de hierboven vermelde formaten, wordt
afgeraden. Afzuigslangen mogen geen luchtlekken, bobbels en knikken bevatten die
problemen bij het afzuigen kunnen veroorzaken. De afvoerslang van de pompoutlet
moet aangesloten worden op de inletaansluiting op het zwembadlter (normaal bij het
ltercontroleventiel).
De pijpkoppelingen moeten met de had vast gedraaid worden. Er is geen
afsluitmiddel, lijm of siliconen nodig.
DUTCH
DUTCH

Other manuals for Davey StarFlo DSF150

Related product manuals