8
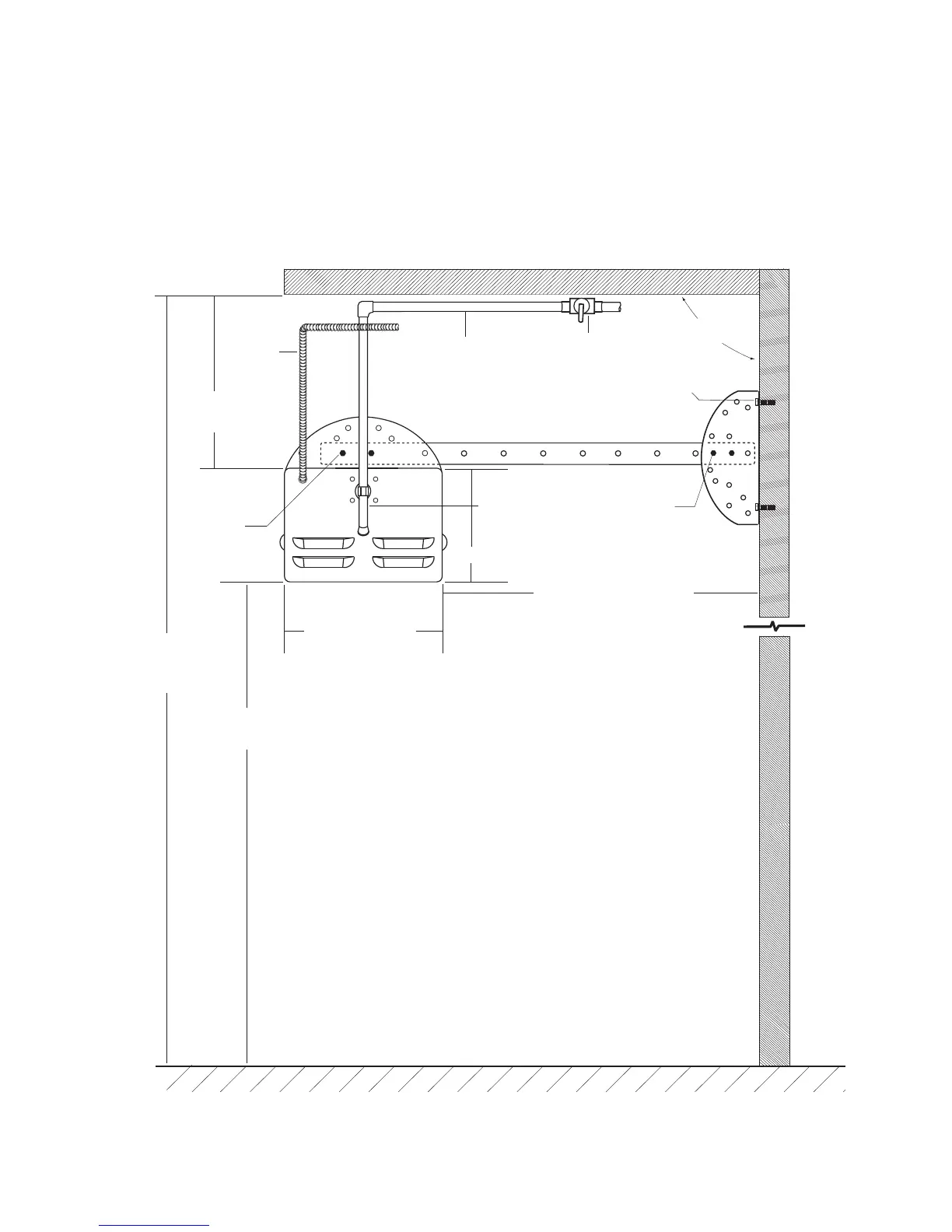
INSTALLATION À 0º
DÉGAGEMENTS MINIMUM PAR RAPPORT À DES MATÉRIAUX COMBUSTIBLES.
INSTALLATION
SPÉCIFICATION CONCERNANT LES DÉGAGEMENTS
45,7 cm min./18 po min.
19,7 cm/7-3/4 po
26 cm/10-1/4 po
VUE LATÉRALE
PLANCHER
40,6 cm min./
16 po min.
243,8 cm min./
96 po min.
Tube 1,3 cm
(1/2 po)
(fourni par
l'installateur)
Point de purge avec
connexion de
manomètre d'essai
1/8”NPT branché.
Robinet d'arrêt de
l
'alimentation de gaz
(
fourni par l'installateur)
T
uyau de gaz
(
fourni par l'installateur)
Utilisez 2
boulons
(min.) par
support.
Utilisez 2
boulons (min.)
par support.
S
urface
combustible
Quatre boulons,
deux de
chaque côté
(
fourni par l'installateur)
304,8 cm/
120 po
Remarque : il est fortement recommandé d'u-
tiliser une visserie en acier ino
xydable. Les
boulons dans le mur doivent être fixés dans les
poteaux muraux ou la structure. L'appareil de
chauff
age p
èse 22,6 k
g (50 lb).