EasyManua.ls Logo

Dea GEKO - Page 13

Dea GEKO
76 pages
Go to English
To Next Page IconTo Next Page
To Next Page IconTo Next Page
To Previous Page IconTo Previous Page
To Previous Page IconTo Previous Page
Loading...
G E K O
11
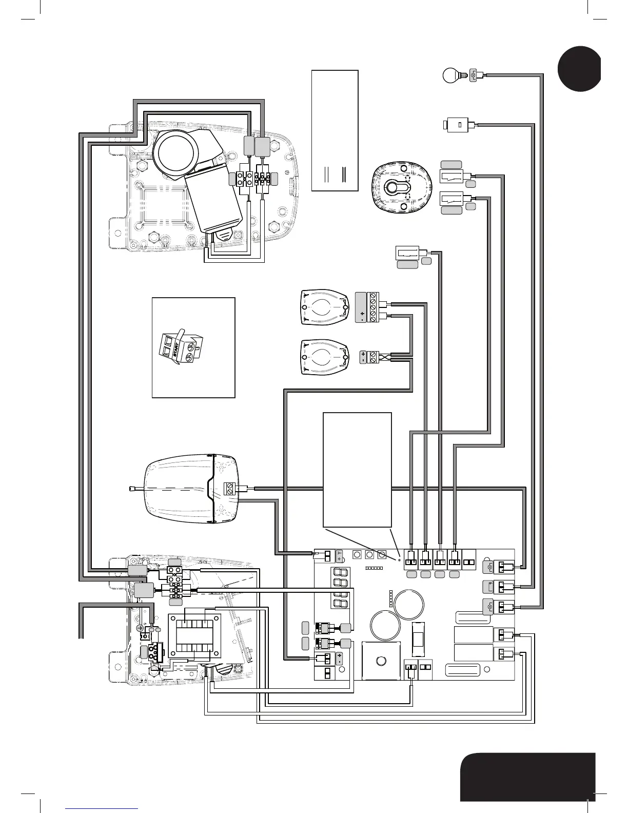
IT
TX - FOTO RX - FOTO
START
PED
N.O.
N.O.
COM
N.C.
N.O.
LUMY/24A/S
MARRONE
VERDE
BIANCO
MARRONE
VERDE
BIANCO
BLU
ROSSO
BLU
ROSSO
FLASH
ELETTROSERRATURA art.110
WARNING LOCK
2 x 1 mm
2
2 x 0,5 mm
2
2 x 0,5 mm
2
2 x 0,5 mm
2
2 x 0,5 mm
2
2 x 1 mm
2
3 x 0,22 mm
2
2 x 1,5 mm
2
RG58
2 x 0,5 mm
2
1
2
3
4
5 6 7 8 9 10 11 12 13 14
15
16
17
18
19
20
21
22
23
24
252627282930
SPIA CANCELLO APERTO 24V 5w
CABLAGGI INTERNI
PREDISPOSTI IN FABBRICA
CABLAGGI ESTERNI
PREDISPOSTI DALL’INSTALLATORE
ALIMENTAZIONE
230V~ 50Hz ±10%
N.O.N.O. N.C.
STOP
N.C.
2 x 0,5 mm
2
J6
J10
J5 J9
ENC
M1
ENC
M2
CON1
CON2
CON3
CON2
CON3
N.C.
* ATTENZIONE: Nel caso in cui
l’installazione richieda comandi
diversi e/o aggiuntivi rispetto allo
standard, è possibile congurare
ciascun ingresso per il funziona-
mento desiderato. Fare riferimen-
to al paragrafo 5.3.
F
N
Applicare sulle morsettiere le
etichette fornite, per identi-
care la funzione prevista.
ABAB

Table of Contents

Other manuals for Dea GEKO

Related product manuals