EasyManua.ls Logo

DEFENDERTECH MF-50 - Electronic Board Description; Electrical Connection; 230 Vac Power Connection

Default Icon
Print Icon
To Next Page IconTo Next Page
To Next Page IconTo Next Page
To Previous Page IconTo Previous Page
To Previous Page IconTo Previous Page
Loading...
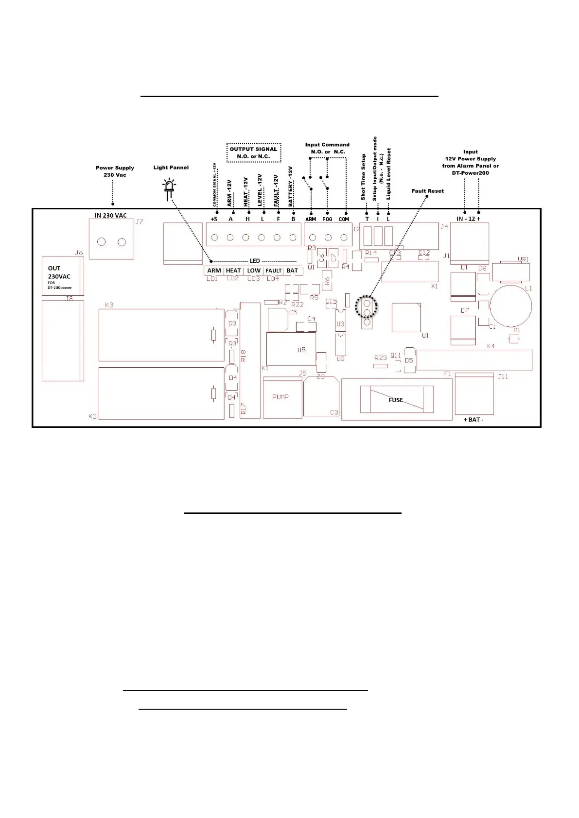
Electronic Board Description
Electrical connection
IN 230 Vac
Power supply 230Vac.+/- 10% 600 Watt (2,3A)
Power the device by connecting the mains cable to the appropriate terminal
silkscreened: “IN 230 Vac”, placed on the PCB board.
Connect the system grounding to the special faston fixed to the frame.
Note. Prepare a dedicated 230V power supply line,
with switch and adequate protections.

Related product manuals