EasyManua.ls Logo

DEFENDERTECH MF-50 - Collegamento Elettrico

Default Icon
Print Icon
To Next Page IconTo Next Page
To Next Page IconTo Next Page
To Previous Page IconTo Previous Page
To Previous Page IconTo Previous Page
Loading...
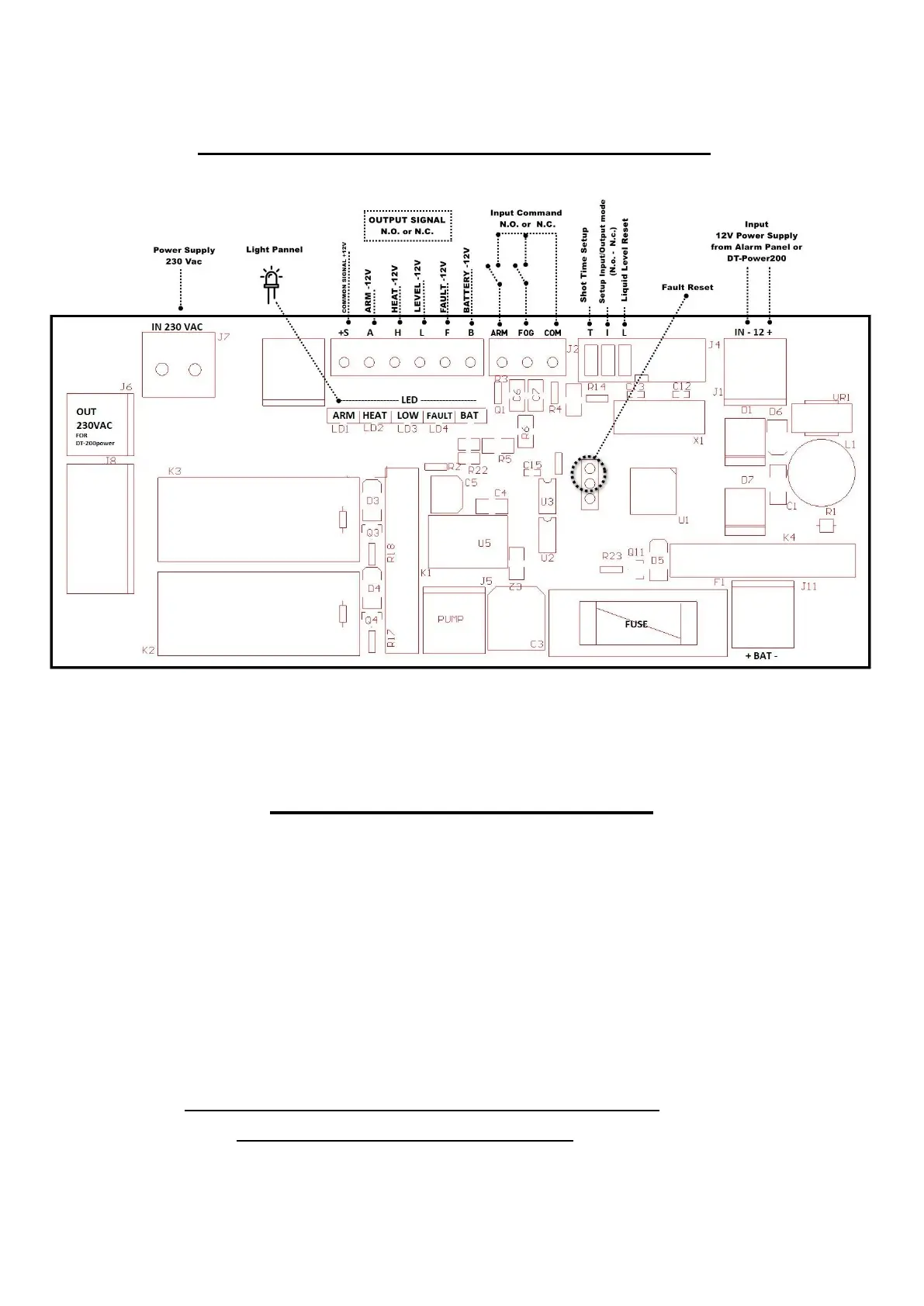
Descrizione Scheda Elettronica
Collegamento elettrico
IN 230 Vac
Alimentazione di potenza 230Vac. +/- 10% 600 Watt (2,3A)
Alimentare la macchina collegando il cavo di rete elettrica all'apposito morsetto
serigrafato: “IN 230 Vac”, collocato sulla scheda PCB.
Collegare la messa a terra dell'impianto all'apposito Faston fissato al telaio
N.B. Predisporre una linea di alimentazione 230V dedicata,
con interruttore e protezioni adeguate.

Related product manuals