EasyManua.ls Logo

Defy DBO474 - Oven Installation Details

Defy DBO474
24 pages
Print Icon
To Next Page IconTo Next Page
To Next Page IconTo Next Page
To Previous Page IconTo Previous Page
To Previous Page IconTo Previous Page
Loading...
Page 11
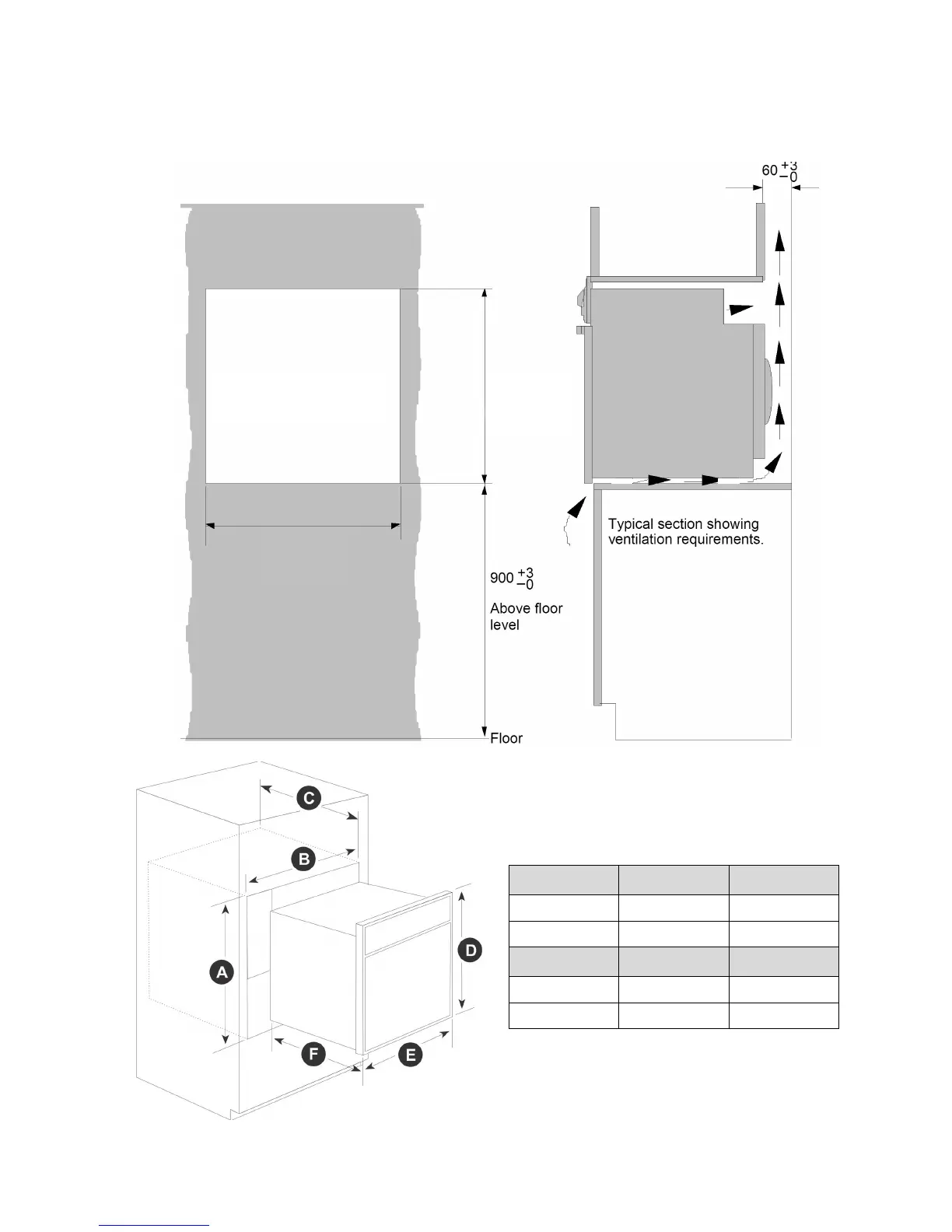
x Insert the oven into the cupboard.
x Open the door to expose the fixing holes in the side trims.
x Secure the oven by 4 countersunk screws (fasteners are not supplied).
Oven installation
APERTURE
668 H x 700 W x 580 D
668
APERTURE
700
APERTURE
A B C
HEIGHT WIDTH DEPTH
668 mm 700 mm 580 mm
D E F
HEIGHT WIDTH DEPTH
675 mm 730 mm 550 mm

Related product manuals