EasyManua.ls Logo

DeLonghi DMFPSII - Page 8

DeLonghi DMFPSII
36 pages
Print Icon
To Next Page IconTo Next Page
To Next Page IconTo Next Page
To Previous Page IconTo Previous Page
To Previous Page IconTo Previous Page
Loading...
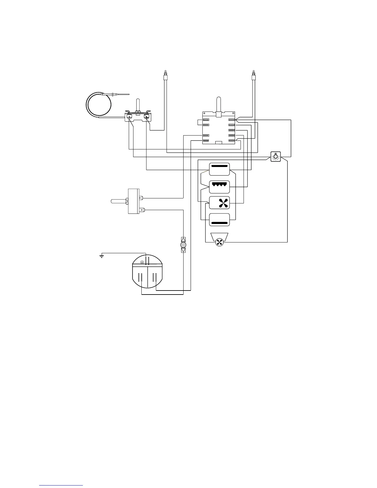
ELECTRIC DIAGRAM - plurifunction OVENS
1
1a
4
4a
3
3a
2
2a
5
5a
CC
LF
C
G
S
V
TL
TE
S1S2
F1
T
CF
N
L
M
Cod. 1131332
Figure 5
F1 Oven switch
TE Oven thermostat
LF Oven lamp
CC Oven cut-off
S1 Line pilot lamp
S2 Thermostat pilot lamp
TL Thermal overload
M Terminal block
C Top element
G Grill element
S Bottom element
CF Cooling fan
V Fan
T Earth connection
8

Related product manuals