EasyManua.ls Logo

DeLonghi Split Air Conditioner - Indoor Unit Installation Steps

DeLonghi Split Air Conditioner
32 pages
Print Icon
To Next Page IconTo Next Page
To Next Page IconTo Next Page
To Previous Page IconTo Previous Page
To Previous Page IconTo Previous Page
Loading...
0
Install indoor unit
1 5 0mm
φ 6 5mm
φ6 5mm
1 5 0mm
Ø 65
5
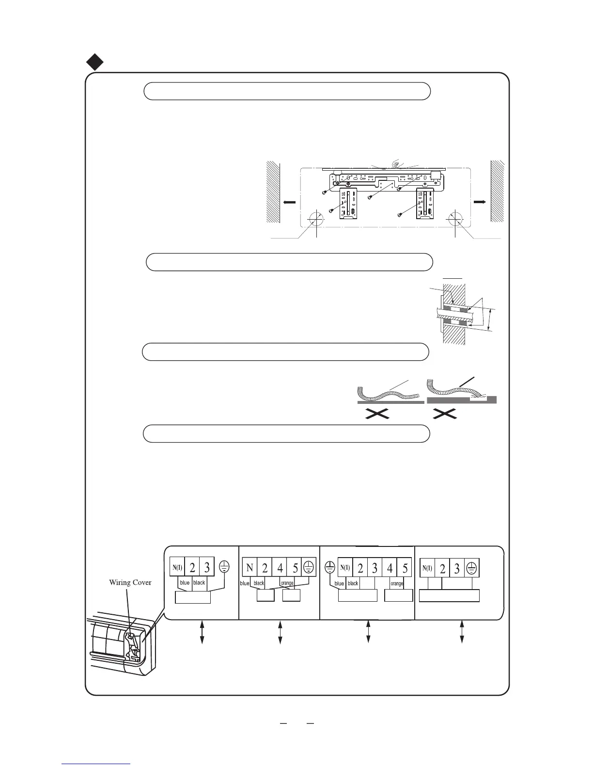
Install the rear panel
1.Always mount the rear panel horizontally. Due to the water tray of indoor unit has been adopted the
both-way drainage design, the outlet of water tray should be adjusted slightly down when installing, that is
taking the outlet of the water tray as the center of a circle, the included angle between the evaporator and
level should be 0 or more, that is good for condensing water drainage.
2.Fix the rear panel on the wall with screws.
(Where is pre-covered with plastic granula)
3.Be sure that the rear panel has been fixed
firmly enough to withstand the weight of an
adult of 60kg, further more, the weight should
be evenly shared by each screw.
Install the piping hole
1.Make the piping hole (Ф55) in the wall at a slight downward slant to the
outdoor side.
2.Insert the piping-hole sleeve into the hole to prevent the connection piping
and wiring from being damaged when passing through the hole.
Install the water drainage pipe
1.For well draining, the drain hose should be placed at a downward slant.
2.Do not wrench or bend the drain hose or flood its end by water.
3.When the long drainage hose passing through indoor,
should wrap the insulation materials.
Wrenched Bent
Flooded
Indoor Outdoor
Wall pipe
Seal pad
Wall
Wall
Mark on the middle of it
Gradienter
Left
Right
(Rear piping hole)
(Rear piping hole)
Space
to the
wall
above
Space
to the
wall
above
Connect indoor and outdoor electric wires
1.Open the surface panel.
2.Remove the wiring cover (see figure below).
3.Route the power connection cord and signal control wire (for cooling and heating unit only) from the
4.Connect the interconnection cord to the terminal block, and then fix the cord with cord anchorge.
5.Reassemble the clampand wiring cover.
back of the indoor unit and pull it toward the front through the wiring hole for connection.
6.Recover the surface panel.
brown
violet
violet
brown
yellow-
green
yellow-
green
ON-OFF: 24K-28K
INVERTER:
9K-12K-18K-22K
ON-OFF: 9K-12K ON-OFF: 18K INVERTER: 28K
outdoor unit connection
outdoor unit connection
outdoor unit connection
yellow-
green
blue brown
yellow-green
outdoor unit connection

Related product manuals