EasyManua.ls Logo

Delta AS08AD-C - As-Fopc02

Delta AS08AD-C
632 pages
Print Icon
To Next Page IconTo Next Page
To Next Page IconTo Next Page
To Previous Page IconTo Previous Page
To Previous Page IconTo Previous Page
Loading...
AS Series Module Manual
10-52
10
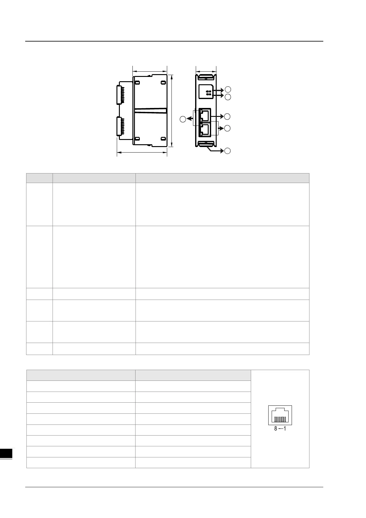
10.3.6 AS-FOPC02
1
88
42
61.5
25.2
2
3
4
5
6
Unit: mm
Number Name Description
1 MS indicator
Indicates the status of the communication card
Green light ON: the operation is working normal
Green light BLINKING: the setting is not complete
Red light ON: internal communication fail, can NOT be recovered
Red light BLINKING: internal communication timeout
OFF: no power
2 NS indicator
Indicates the status of Ethernet connection
Green light ON: a CIP / OPC-UA connection is established
Green light BLINKING: a CIP / OPC-UA
connection is not established
after power-on
Red light ON: duplicated IP address
Red light BLINKING: communication timeout (a CIP / OPC-UA
connection has been established after power-
on)
/ IP address change
OFF: no power / network cable is not connected
3 RJ-45 port X1/X2 For network connections
4 LINK indicator X1/X2
Indicate the status of Ethernet connection
Green light ON: a network connection is established
OFF: a network connection is not established
5 ACT indicator X1/X2
Indicate the status of Ethernet communication
Orange BLINKING: data transmission
OFF: no data transmission
6 Clip ring Secures AS series
RJ-45 Pin Definition
Pin No. RJ-45
1 TX+
2 TX-
3 RX+
4 N/C
5 N/C
6 RX-
7 N/C
8 N/C

Table of Contents

Related product manuals