EasyManua.ls Logo

Delta AS164P-A - Power Supply Module Profiles

Delta AS164P-A
662 pages
Print Icon
To Next Page IconTo Next Page
To Next Page IconTo Next Page
To Previous Page IconTo Previous Page
To Previous Page IconTo Previous Page
Loading...
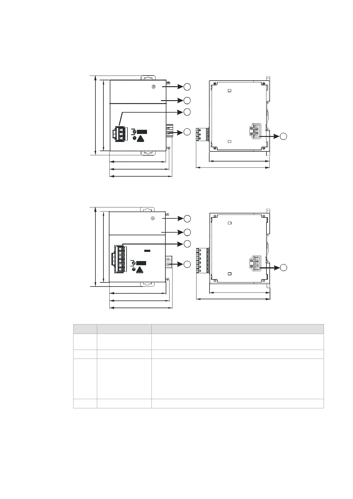
2.11.2 Power Supply Module Profiles
AS-PS02
70
88
98.3
1
4
2
3
IN PUT
Wait 5 seconds a fter removing
L G
WAR NING
Risk o f e lectrical s hock.
power before servicing.
N
L
PS 02
POWER
74.2
77.9
75
91.5
4
Unit: mm
AS-PS02A
70
88
98.3
1
4
2
3
74.2
77.9
75
91.5
O UTP UT
IN PU T
PS02A
POWER
LG
WA RNING
Ris k o f e lec tr ic al s hoc k.
Wa it 5 s e co nds a f te r r em ovi ng
pow er b ef ore s erv icin g.
N
L
24G
+24V
O UTP UT
IN PU T
+24V
24G
Ris k o f e lec tr ic al s hoc k.
LG
L
N
WA RNING
POWER
PS02A
pow er b ef ore s erv icin g.
4
Unit: mm
Number
Name Description
1
POWER LED
indicator (green)
Indicates the status of the power supply
2 Model name Model name of the power supply module
3
Arrangement of the
terminals
+24V: connecting external 24VDC +
24G: connecting external 24G
LG: Line ground
L: AC power input (Line)
N: AC power input (Neutral)
4 Power output Connected with AS series
Send Quote Requests to info@automatedpt.com
Call +1(800)985-6929 To Order or Order Online At Deltaacdrives.com
Send Quote Requests to info@automatedpt.com
Call +1(800)985-6929 To Order or Order Online At Deltaacdrives.com

Table of Contents

Related product manuals