EasyManua.ls Logo

Delta DVP-SX - Page 10

Delta DVP-SX
18 pages
Print Icon
To Next Page IconTo Next Page
To Next Page IconTo Next Page
To Previous Page IconTo Previous Page
To Previous Page IconTo Previous Page
Loading...
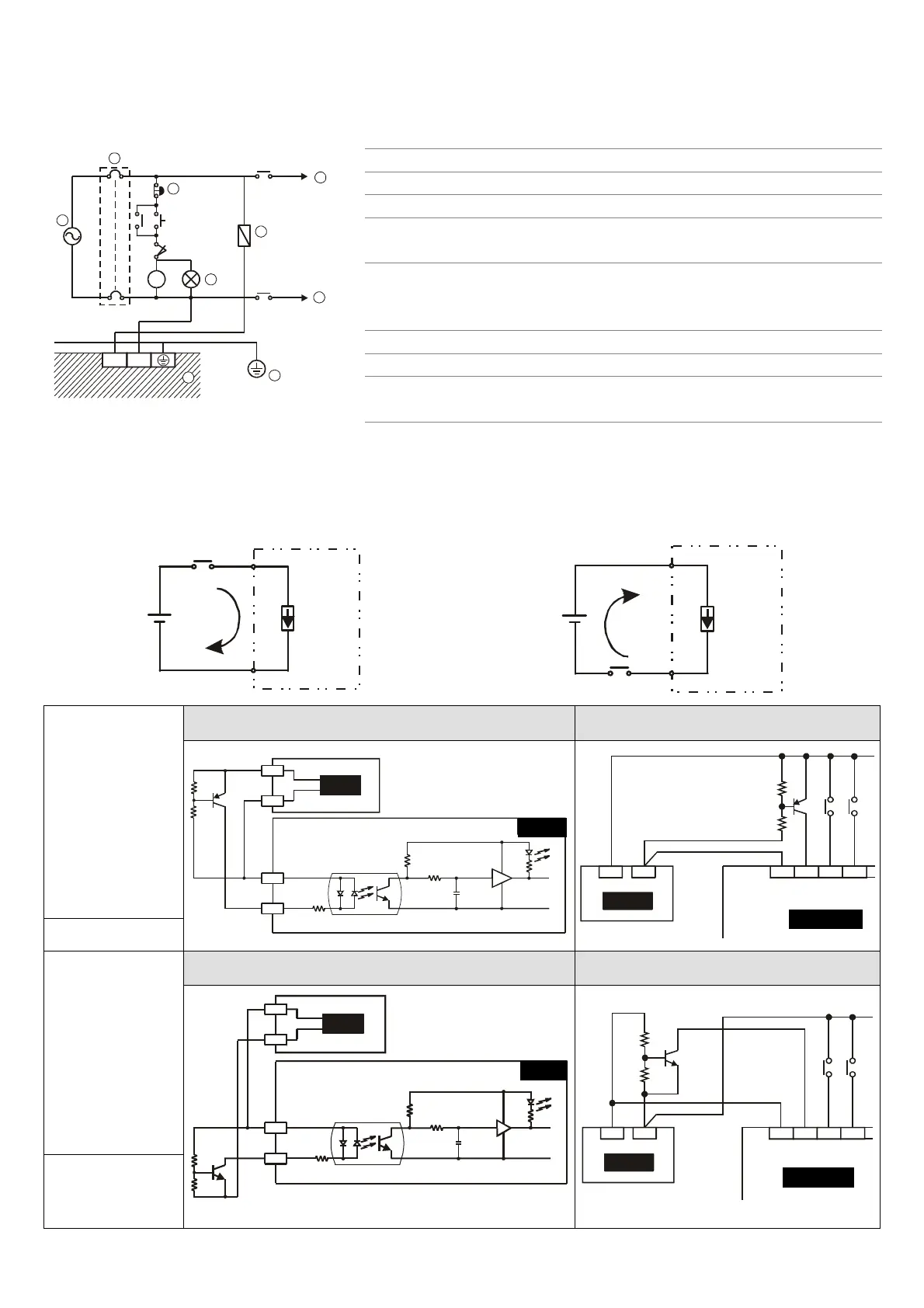
安全配線回路
由於 PLC 控制許多裝置,任一裝置的動作可能都會影響其它裝置的動作,因此任一裝置的故障都可能會造成整
個自動控制系統失控甚至造成危險所以在電源端輸入回路(DVPPS01/DVPPS02)建議配置如下的保護回路:
MC
MC
NL
1
1
2
3
4
5
6
8
Guard
Limit
7
MC
交流電源負載
電源回路保護用保險絲 (3A)
電源指示燈
緊急停止:為預防突發狀況發生,設置一緊急停止按鈕,可在
狀況發生時,切斷系統電源。
系統回路隔離裝置:使用電磁接觸器、繼電器等開關作為系統
電源回路隔離裝置,可防止電源斷續供應時,造成系統的不穩
定。
DVPPS01/DVPPS02 本體
接地
電源供應:交流 (AC)100 ~ 240VAC, 50/60Hz
直流 (DC)24VDC
輸入點之配線
輸入點之入力信號為直流電源 DC 輸入,DC 型式共有兩種模式接法:SINK SOURCE,其定義如下:
Sink = 電流流入共用端 X Source = 電流流出共用 X
Sourcing
S/S
X0
Sinking
S/S
X0
直流形式
DC Signal IN
輸入點回路等效電路 配線回路
+24V
24G
S/S
X0
24VDC
SOURCE
+5V
SINK
Source Type
X1 X2S/S X0+24V OV
24VDC
SINKTYPE
SINK 模式
直流形式
DC Signal IN
輸入點回路等效電路 配線回路
+24V
24G
S/S
X0
24VDC
SINK
+5V
SOURC E
+24V OV
Sink Type
X1 X2S/S X0
24VDC
SOURC ETYPE
SOURCE 模式

Related product manuals