EasyManua.ls Logo

Delta E8 BDI - Page 21

Delta E8 BDI
22 pages
Print Icon
To Next Page IconTo Next Page
To Next Page IconTo Next Page
To Previous Page IconTo Previous Page
To Previous Page IconTo Previous Page
Loading...
19
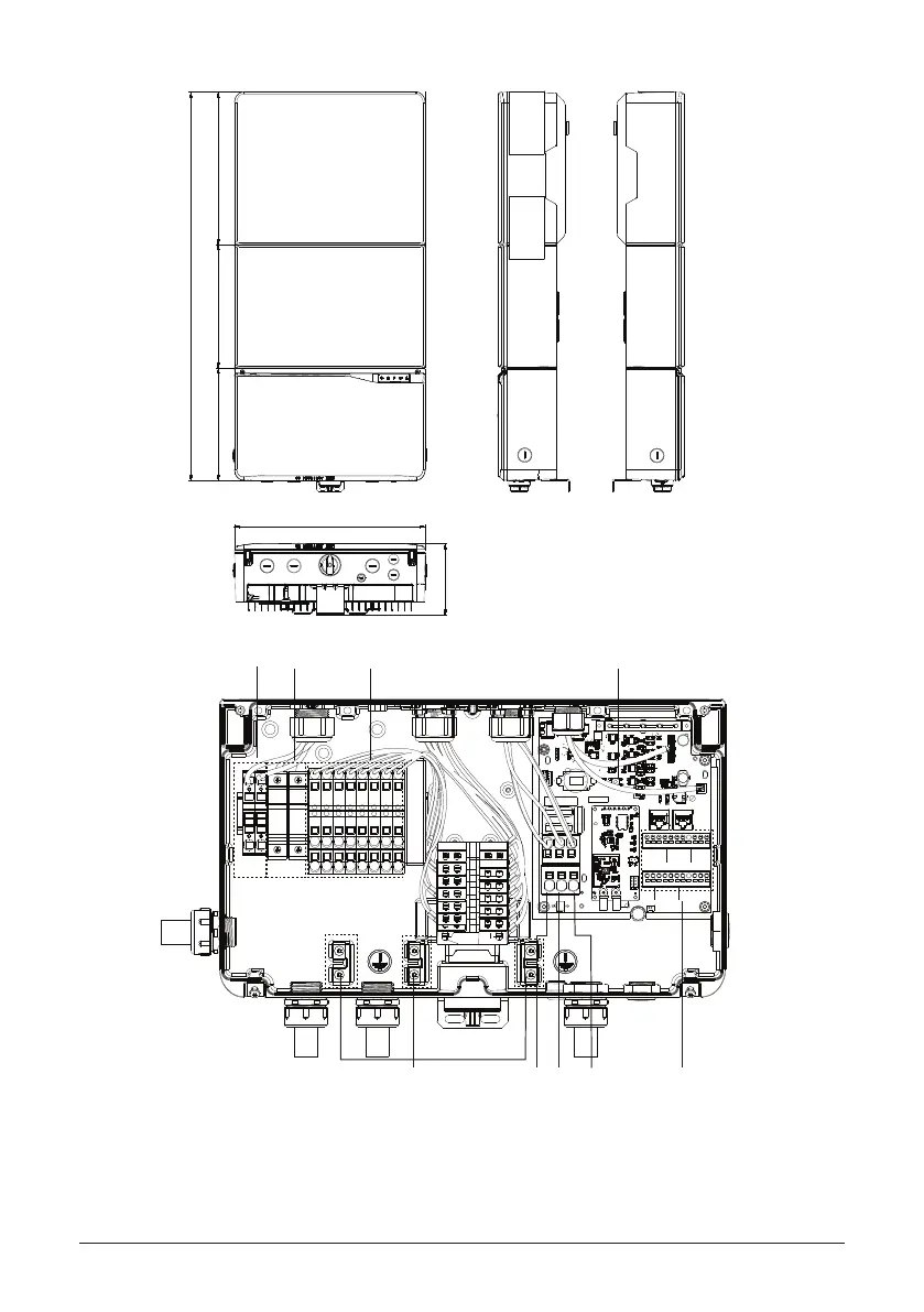
Figure 12: Dimensions of Delta Ex_BDI Series inverters
(1) EVSE teminals
(2) BAT terminals
(3) PV teminals
(4) reset button
(5) Grounding
(6) AC side L1
(7) AC side Netural
(8) AC side L2
(9) RS485 communication ports
Figure 13: Wiring box of Ex_BDI series inverters
34.06 in/865 mm
13.38 in/ 340 mm
9.84 in/250 mm
16.73 in/ 425 mm
6.32 in/ 160 mm
10.83 in/ 275 mm
(2)
(3)(1)
(8)
(7)
(6)
(9)
(4)
(5)

Related product manuals