EasyManua.ls Logo

Delta SOLIVIA 5.0 - Page 353

Delta SOLIVIA 5.0
392 pages
Print Icon
To Next Page IconTo Next Page
To Next Page IconTo Next Page
To Previous Page IconTo Previous Page
To Previous Page IconTo Previous Page
Loading...
351
ΕΛΛΗΝΙΚΟ
Εγχειρίδιο χρήσης SOLIVIA 5.0 EU G3
319.5
150
320
200
6.5
12
Ø
12.5
90
38
12
410 ± 0.5
6.3 Συντήρηση
Κατά τη συνολική διάρκεια λειτουργίας προσέξτε ώστε ο Solar Inverter να μην είναι καλυμμένος.
Επίσης το περίβλημα θα πρέπει σε τακτά χρονικά διαστήματα να καθαρίζεται από σκόνη και
ρύπους.
Στη συσκευή δεν υπάρχουν εξαρτήματα που χρήζουν συντήρησης και σε καμία περίπτωση δεν
επιτρέπεται να ανοίξετε το περίβλημα.
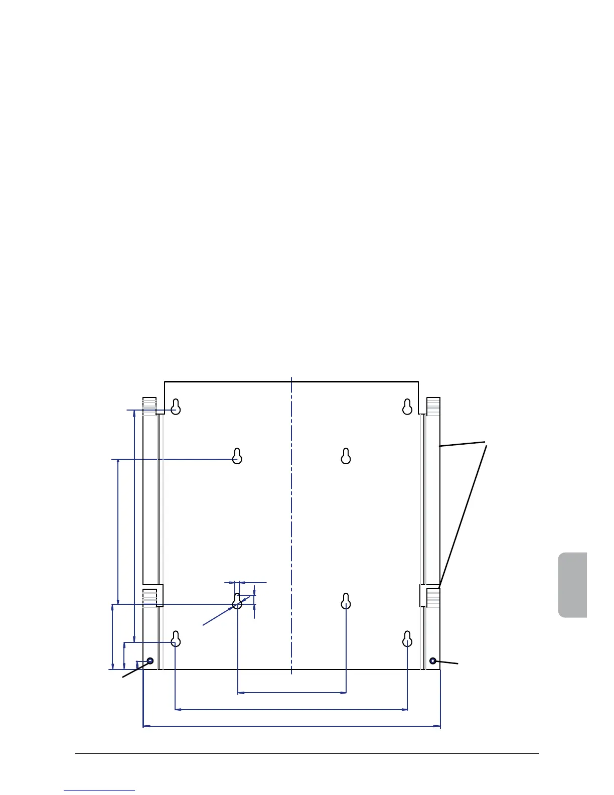
6.4 Συναρμολόγηση
Θα πρέπει να χρησιμοποιήσετε την παραδοτέα πλάκα συναρμολόγησης για τη σωστή
εγκατάσταση του ηλιακού μετασχηματιστή. Η στήριξη στον τοίχο θα πρέπει να πραγματοποιηθεί
με επαρκείς βίδες. Συναρμολογήστε την επιτοίχια βάση έτσι ώστε αργότερα να πρέπει απλά να
κρεμάσετε τον Solar Inverter. Στη συνέχεια θα πρέπει να βιδώσετε τη συσκευή.
Οδηγίες συναρμολόγησης
1. Εγκαταστήστε την πλάκα συναρμολόγησης με επαρκείς βίδες (Ø 6mm κατά το μέγιστο)
σε τουλάχιστον τέσσερις από τις οχτώ οπές ώστε να στερεώσετε στη σωστή θέση
το πλαίσιο τοίχου.Για να μαρκάρετε τα σημεία όπου θα κάνετε τις οπές μπορείτε να
χρησιμοποιήσετε την επιτοίχια βάση ως πρότυπο για το τρυπάνι.
2. Σηκώστε τον Solar Inverter λόγω του βάρους του, των 32,0 kg, με τουλάχιστον δύο
άτομααπό το χαρτοκιβώτιο μεταφοράς.
3. Κρεμάστε τον Solar Inverter με τουλάχιστον δύο άτομα στη βάση.
4. Βιδώστε τα παραδοτέα παξιμάδια στερέωσης και τις ροδέλες στις βίδες με σπειρώματα
για να σταθεροποιήσετε τη συσκευή.
5. Ελέγξτε τον Solar Inverter ως προς τη σταθερότητα.
Επιτοίχια
βάση
Βίδες με
σπείρωμα για τη
στερέωση της
συσκευής
Βίδες με
σπείρωμα για τη
στερέωση της
συσκευής

Table of Contents