EasyManua.ls Logo

Delta VFD015B21A - VFD300 B23 A 30.0 Kw (40 HP) 230 V; 3-Phase; VFD370 B23 A 37.0 Kw (50 HP) 230 V; 3-Phase

Delta VFD015B21A
178 pages
Print Icon
To Next Page IconTo Next Page
To Next Page IconTo Next Page
To Previous Page IconTo Previous Page
To Previous Page IconTo Previous Page
Loading...
C
VFD-B Series
DELTA ELECTRONICS, INC. ALL RIGHTS RESERVED
C-7
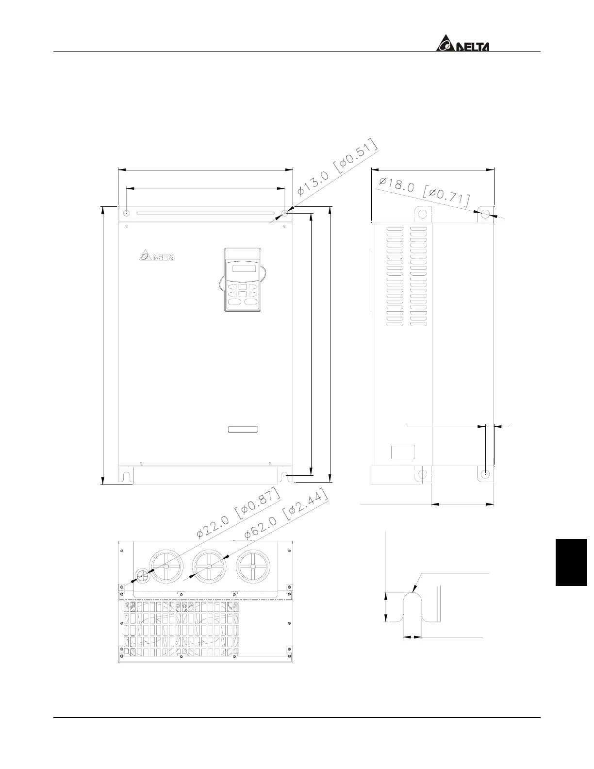
VFD300B23A 30.0 kW (40HP) 230V / 3-phase
VFD370B23A 37.0 kW (50HP) 230V / 3-phase
Unit: mm (inches)
132.5 [5.22]
18.0 [0.71]
21.0[0.83]
335.0 [13.19]
370.0 [14.57] 260.0 [10.24]
589.0 [23.19]
560.0 [22.05]
R6.5[0.25]
13.0[0.51]
595.0 [23.43]

Table of Contents

Other manuals for Delta VFD015B21A

Related product manuals