EasyManua.ls Logo

Delta VFD17AMS43ANSAA - Mounting Adapter Plate

Delta VFD17AMS43ANSAA
805 pages
Print Icon
To Next Page IconTo Next Page
To Next Page IconTo Next Page
To Previous Page IconTo Previous Page
To Previous Page IconTo Previous Page
Loading...
Chapter 7 Optional AccessoriesMS300
109
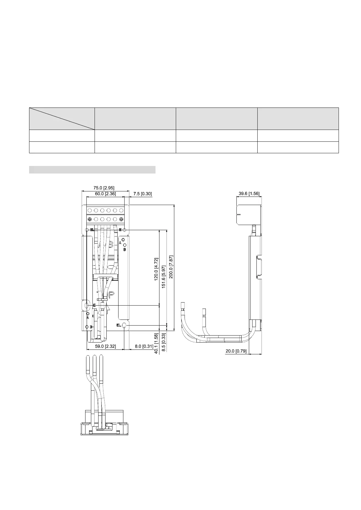
7-13 Mounting Adapter Plate
The mounting adapter plate is to change the wiring method for the ME300 / MS300 / MH300 series to
provide you a flexible installation. It changes the wiring method from the bottom-mains input/ bottom-
motor output" to the “top-mains input/bottom-motor output" for ME300 / MS300 / MH300. Therefore, you
can use the mounting adapter plate to change the drive from VFD-E/VFD-EL series to ME300/
MS300/MH300 series without changing the original wiring method and fixing hole. The following table
shows the correspondences.
MKM-MAPB: Applicable for Frame A and B
Unit: mm (inch)
Figure 7-75
Series
Models
ME / MS / MH300
VFD-E
VFD-EL
MKM-MAPB
Frame A–B
Frame A
Frame A
MKM-MAPC
Frame C
Frame B
Frame B
Table 7-58

Table of Contents

Other manuals for Delta VFD17AMS43ANSAA

Related product manuals