EasyManua.ls Logo

Delta VFD17AMS43ANSAA - Frame C

Delta VFD17AMS43ANSAA
805 pages
Print Icon
To Next Page IconTo Next Page
To Next Page IconTo Next Page
To Previous Page IconTo Previous Page
To Previous Page IconTo Previous Page
Loading...
Chapter 2 DimensionsMS300
12
2-3 Frame C
C1: VFD4A8MS11ANSAA; VFD4A8MS11ENSAA; VFD7A5MS21ANSAA; VFD7A5MS21ENSAA;
VFD11AMS21ANSAA; VFD11AMS21ENSAA; VFD11AMS23ANSAA; VFD11AMS23ENSAA;
VFD17AMS23ANSAA; VFD17AMS23ENSAA; VFD5A5MS43ANSAA; VFD5A5MS43ENSAA;
VFD7A3MS43ANSAA; VFD7A3MS43ENSAA; VFD9A0MS43ANSAA; VFD9A0MS43ENSAA;
VFD4A2MS53ANSAA; VFD6A6MS53ANSAA
C2: VFD7A5MS21AFSAA; VFD11AMS21AFSAA; VFD5A5MS43AFSAA; VFD7A3MS43AFSAA;
VFD9A0MS43AFSAA
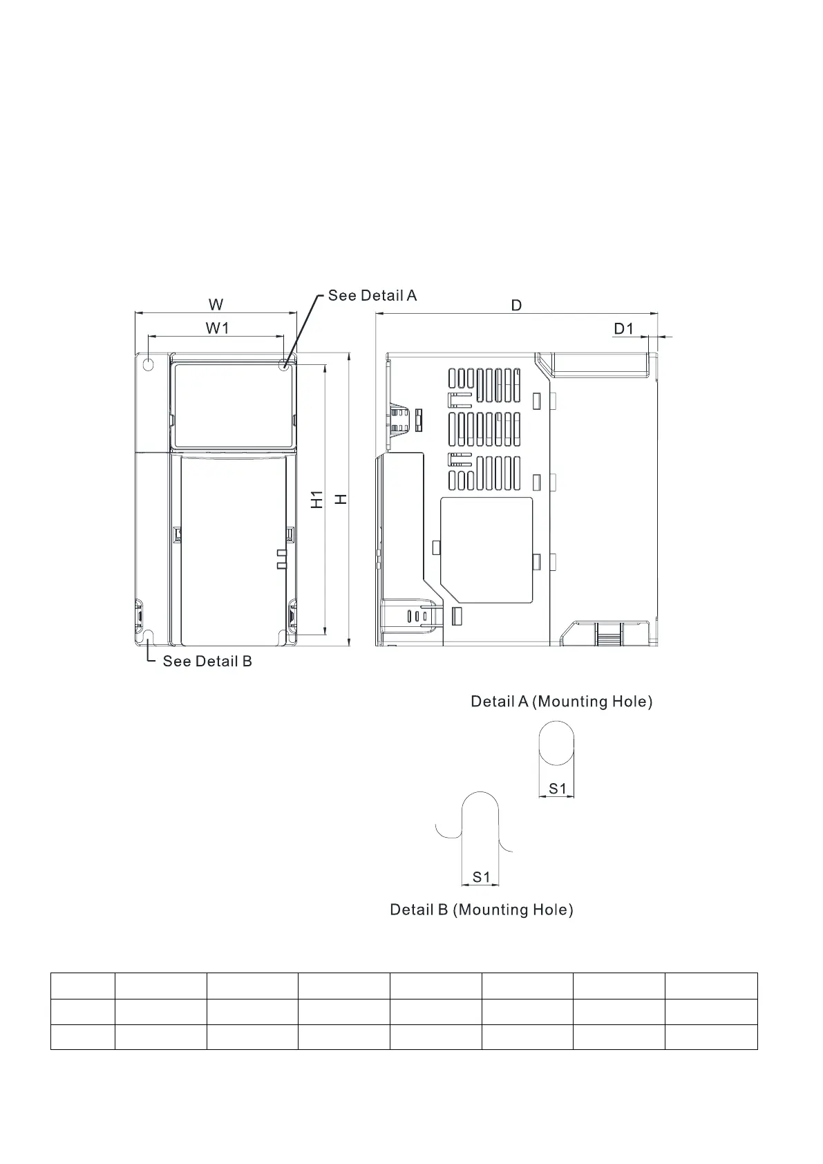
Figure 2-3
Unit: mm (inch)
Frame
W
H
D
W1
H1
D1
S1
C1
87.0 (3.43)
157.0 (6.18)
152.0 (5.98)
73.0 (2.87)
144.5 (5.69)
5.0 (0.20)
5.5 (0.22)
C2
87.0 (3.43)
157.0 (6.18)
179.0 (7.05)
73.0 (2.87)
144.5 (5.69)
5.0 (0.20)
5.5 (0.22)
Table 2-3

Table of Contents

Other manuals for Delta VFD17AMS43ANSAA

Related product manuals