EasyManua.ls Logo

Delta VFD370C43S-HS - Page 118

Delta VFD370C43S-HS
814 pages
To Next Page IconTo Next Page
To Next Page IconTo Next Page
To Previous Page IconTo Previous Page
To Previous Page IconTo Previous Page
Loading...
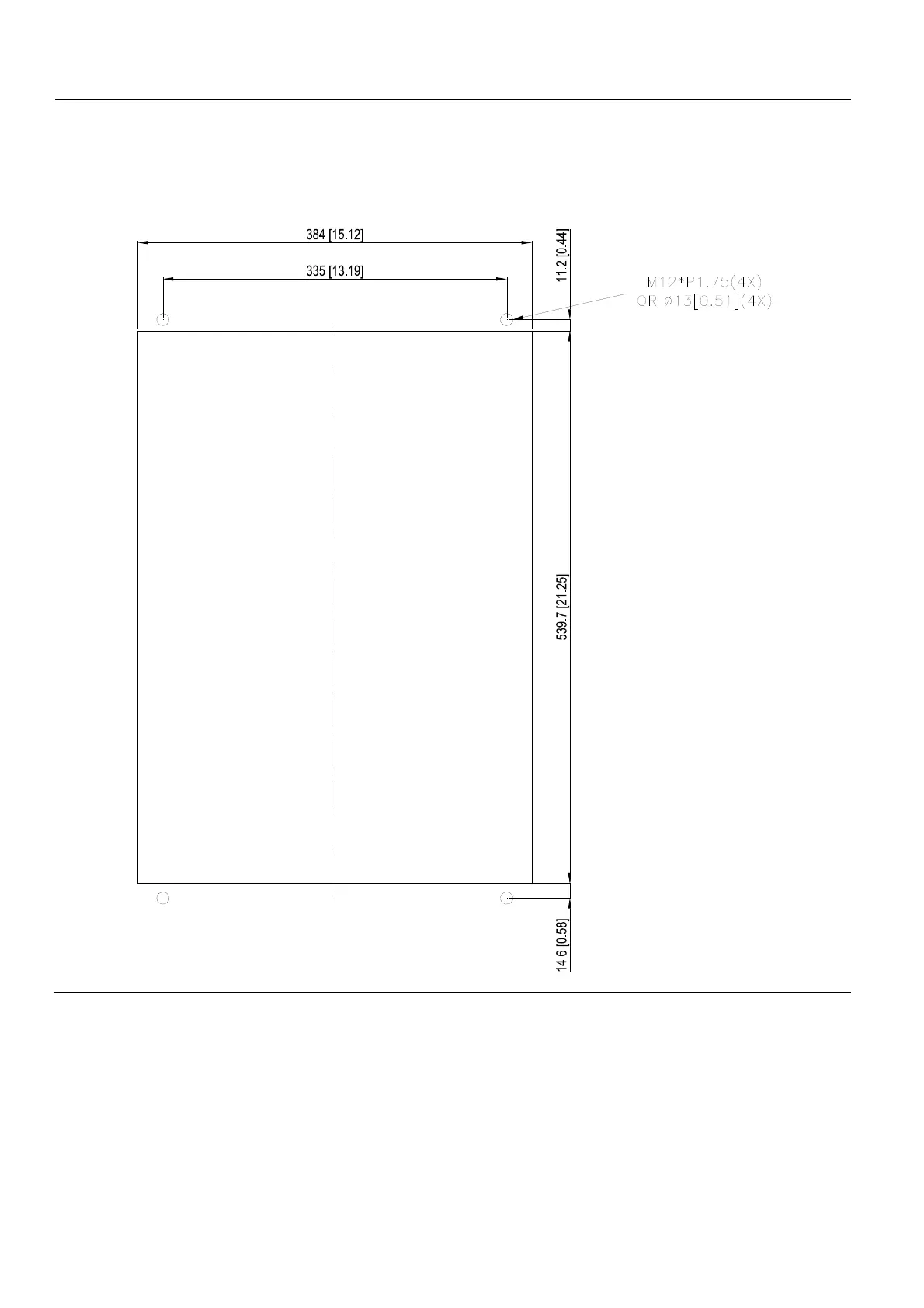
Chapter 7 Optional AccessoriesC2000-HS
7-46
Frame E
Applicable model
VFD1100C43A-HS
Cutout dimension Unit: mm [inch]

Table of Contents

Related product manuals