EasyManua.ls Logo

Delta VFD450CP43S-00 - Page 138

Delta VFD450CP43S-00
868 pages
To Next Page IconTo Next Page
To Next Page IconTo Next Page
To Previous Page IconTo Previous Page
To Previous Page IconTo Previous Page
Loading...
Chapter 7 Optional AccessoriesCP2000
7-29
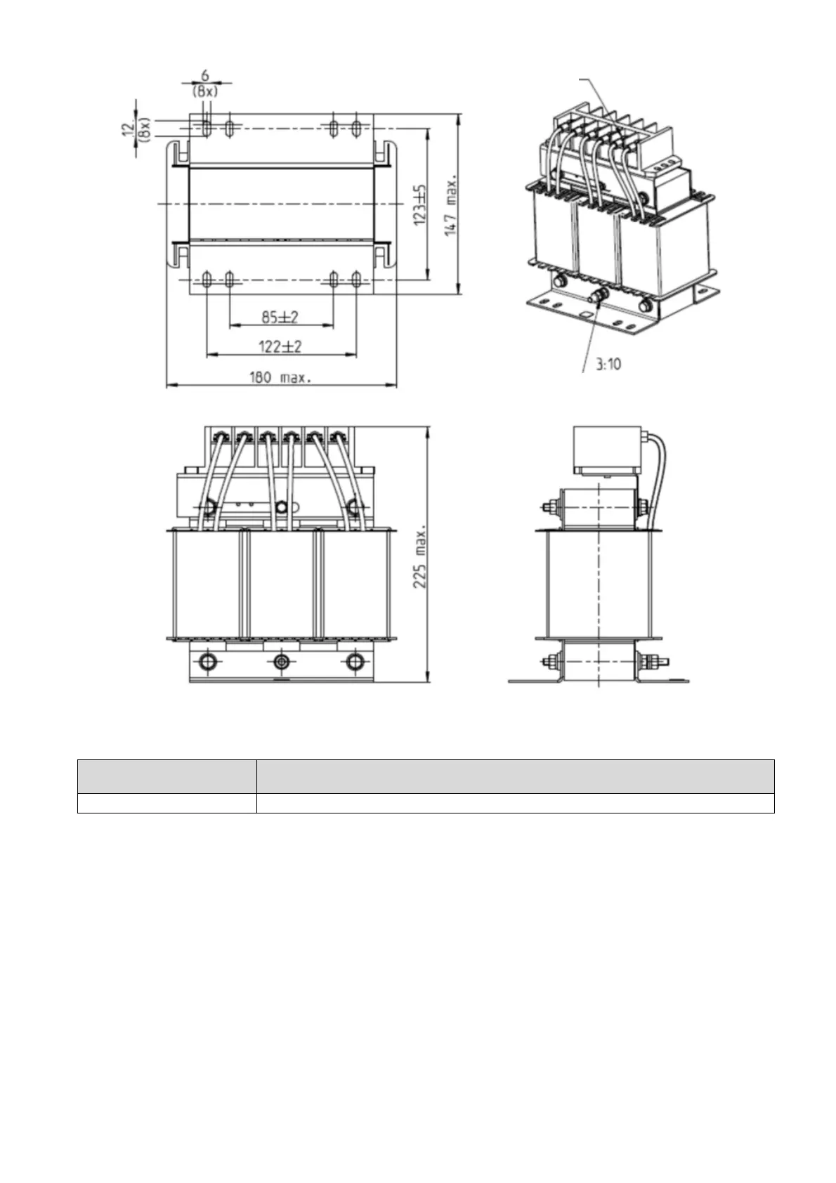
Input AC reactor
Delta part #
Dimensions
DR060AP405 Refer to the diagram above
Installing screw M6
PE M6
Tightening torque: 3±1.5 N
Unit: mm
Figure 7-20
Table 7-36

Table of Contents

Related product manuals