EasyManua.ls Logo

Delta VFD450CP43S-00 - Page 225

Delta VFD450CP43S-00
868 pages
To Next Page IconTo Next Page
To Next Page IconTo Next Page
To Previous Page IconTo Previous Page
To Previous Page IconTo Previous Page
Loading...
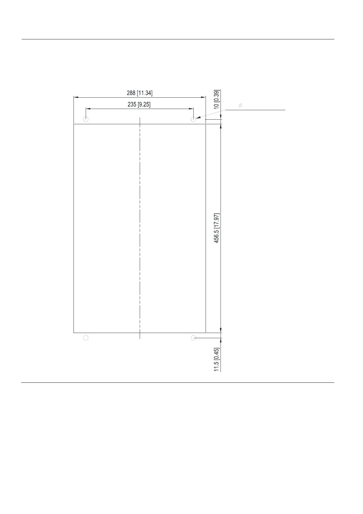
Chapter 7 Optional AccessoriesCP2000
7-116
Frame D0
Applicable model
VFD450CP43S-00; VFD450CP43S-21; VFD550CP43S-00; VFD550CP43S-21
Cutout dimension Unit: mm [inch]
M10*P1.5(4X)
OR
11.0[0.43](4X)

Table of Contents

Related product manuals