EasyManua.ls Logo

Delta VFD450CP43S-00

Delta VFD450CP43S-00
868 pages
To Next Page IconTo Next Page
To Next Page IconTo Next Page
To Previous Page IconTo Previous Page
To Previous Page IconTo Previous Page
Loading...
Chapter 7 Optional AccessoriesCP2000
7-120
Frame F Installation
Applicable model
VFD1600CP43A-00; VFD1600CP43A-21; VFD1850CP43B-00; VFD1850CP43B-21; VFD1600CP63A-00;
VFD1600CP63A-21; VFD2000CP63A-00; VFD2000CP63A-21
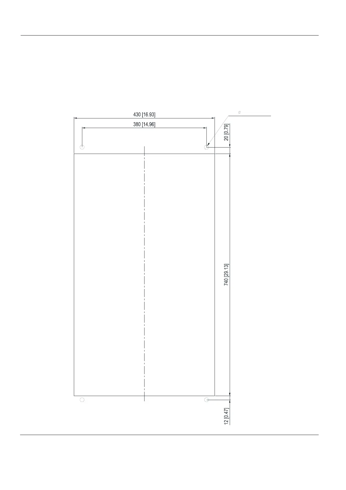
Cutout dimension Unit : mm [inch]
M12*P1.75(4X)
OR
13.0[0.51](4X)

Table of Contents

Related product manuals