EasyManua.ls Logo

Delta VFD450CP43S-00 - Page 25

Delta VFD450CP43S-00
868 pages
To Next Page IconTo Next Page
To Next Page IconTo Next Page
To Previous Page IconTo Previous Page
To Previous Page IconTo Previous Page
Loading...
Chapter 1 IntroductionCP2000
1-16
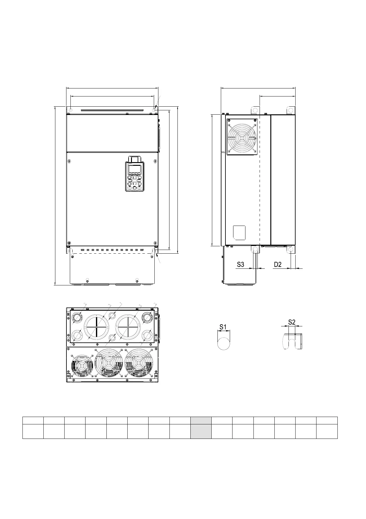
Frame E
E2: VFD550CP23A-21; VFD750CP23A-21; VFD900CP23A-21; VFD1100CP43A-21; VFD1320CP43B-21;
VFD750CP63A-21; VFD900CP63A-21; VFD1100CP63A-21; VFD1320CP63A-21
?
D
D1
H
H3
?
H1
H2
?
W
W1
?
?
?
?
?
Figure 1-22
Unit: mm [inch]
Frame W H D W1 H1 H2 H3 D1* D2 S1, S2 S3 Φ1 Φ2 Φ3
E2
370.0
[14.57]
715.8
[28.18]
300.0
[11.81]
335.0
[13.19
589.0
[23.19]
560.0
[22.05]
528.0
[20.80]
143.0
[5.63]
18.0
[0.71]
13.0
[0.51]
18.0
[0.71]
22.0
[0.87]
34.0
[1.34]
92.0
[3.62]
D1*: Flange mounting
See Detail
A
See Detail B
Detail A
(Mounting Hole)
Detail B
(Mounting Hole)

Table of Contents

Related product manuals