EasyManua.ls Logo

Delta VFD450CP43S-00 - Page 537

Delta VFD450CP43S-00
868 pages
To Next Page IconTo Next Page
To Next Page IconTo Next Page
To Previous Page IconTo Previous Page
To Previous Page IconTo Previous Page
Loading...
Chapter 12 Description of Parameter SettingsCP2000
12.1-12-9
Frequency for Stopping Auxiliary Motor (Hz)
Default: 0
Settings 0.00–599.00 Hz
When the output frequency is smaller than the Pr.12-08 and remains at the time setting for
Pr.12-04, the CP2000 shuts down the motors one by one.
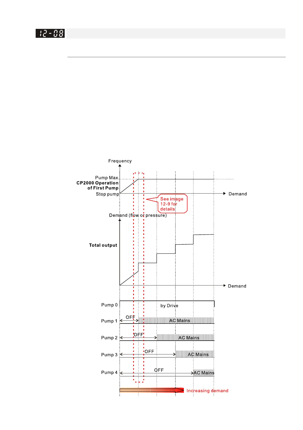
Fixed Quantity Control with PID
In this mode, the CP2000 can control up to eight motors to increase flow quantity and pressure
range control.
The CP2000 connects directly to a main motor while the rest of the motors use mains electricity
and are controlled by a relay. When controlling flow quantity, the motors are in parallel connection.
When controlling pressure range, the motors are in series connection.
To increase the flow quantity or pressure range, the CP2000 increases the main motors pressure
from 0 Hz to the largest operating frequency. If necessary, the CP2000 switches the motors to
use mains electricity in sequence. See sequential diagram 12-8 and 12-9.
Diagram 12-8: Sequence of Fixed Quantity Control with PID – Increasing Demand

Table of Contents

Related product manuals