EasyManua.ls Logo

Delta VFD750C43A-HS - Flange Mounting Kit

Delta VFD750C43A-HS
814 pages
Print Icon
To Next Page IconTo Next Page
To Next Page IconTo Next Page
To Previous Page IconTo Previous Page
To Previous Page IconTo Previous Page
Loading...
Chapter 7 Optional AccessoriesC2000-HS
7-44
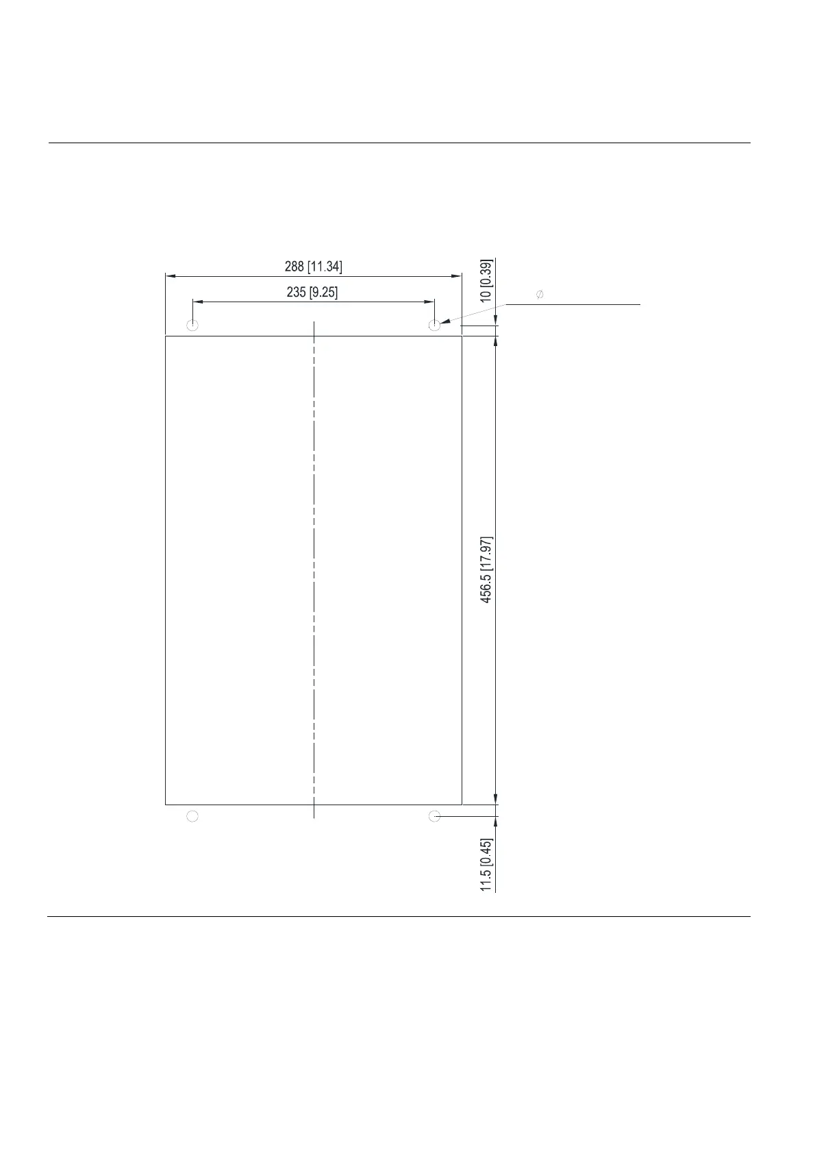
7-9 Flange Mounting Kit
Applicable Models, Frame D0–F
Frame D0
Applicable model
VFD300C43S-HS; VFD370C43S-HS
Cutout dimension Unit: mm [inch]
M10*P1.5(4X)
OR
11.0[0.43](4X)

Table of Contents

Related product manuals