EasyManua.ls Logo

Demco 6141 - 6081 Pivot Head Parts Breakdown; 6081 Pivot Head Components List

Demco 6141
12 pages
Print Icon
To Next Page IconTo Next Page
To Next Page IconTo Next Page
To Previous Page IconTo Previous Page
To Previous Page IconTo Previous Page
Loading...
Page 8 HJ26141
6081 Parts Breakdown
Patent Pending








*5($6(3,16
%/8(7+5($'/2&.
%/8(7+5($'/2&.
*5($6(52'


%
%
)
*
+
,





$
%
/
/
/
/
,7(0
3$57
'(6&5,37,21
47<

%2/71&;+(;*5

1871&1</21/2&.

%2/71&;*5+(;

187-$0

6&5(:1&;6(/)'5,//,1*+(;:$6+(5+($'

6$)7</2&.3,1$66(0%/<

635,1*7(16,21:,5(;2';)/

635,1*&2035(660:

-$:+22.


6(&21'$5</$7&+-$:


0$,1-$:3,1


6(&21'$5<-$:3,1


%$5-$:/,1.


WK:+((/'28%/(3,927+($'


&$3785(3/$7($66(0%/<
 
6&5(:1&;62&.(7+'&$3
 
61$35,1*(;7)256+$)7
 
61$35,1*(;7)6+$)7
 
52//3,1;


/(9(5$50%$5


/2&.%$5
 
85(7+$1(3,927%803(57+,&.
 
&$3785(3/$7(02817
 
+-+$1'/($66(0%/<
 
%2/71&;6(55)/*+(;*5
5(9
(&1
'$7(
')70
6HH6KHHW
'5$:1%<
'$7(
-.

'$7(
$3329%<
-.

:(,*+7
92/80(
 
6&$/(

6+((7
2)
'(6&5,37,21
7+:+((/'3+($')$6
'5$:,1*12

5(9
/

;
0,10$&+,1(685)$&(
;;
%5($.$//6+$53('*(6
;;;
%(1'$1''5$)7

7+('5$:,1*$1'$//
,1)250$7,217+(5(
21$5(7+(3523(57<
2)'(0&2
7+,5'$1*/(
352-(&7,21
7+675((7%2<'(1,2:$
72/(5$1&(6
81/(6627+(5:,6(
63(&,),('$//
',0(16,216
$5(,1,1&+(6
US Pat. 9,550,398
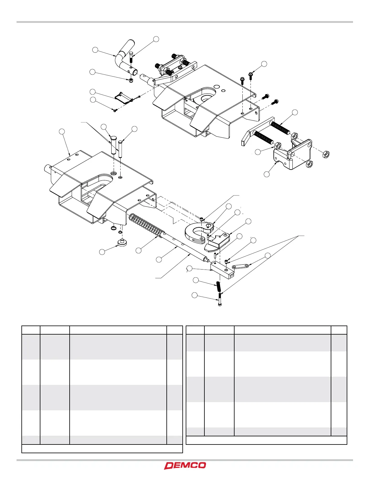
ITEM PART # DESCRIPTION QTY
1 00908 BOLT, .375 NC X 1.75 HEX GR.5 1
2 02592 NUT, .375NC NYLON LOCK 1
3 03547 BOLT .313NC X 2.25 GR5 HEX 1
4 03701 NUT, .75 JAM 8
5 03787 SCREW #10NC X .50 SELF DRILLING 1
6 05337 SAFETY LOCK PIN ASSEMBLY 1
7 14315 SPRING, TENSION 1
8 14385 SPRING COMPRESS .105 MW 1
9 14594-95 JAW HOOK 1
10 14595-95 SECONDARY LATCH JAW 1
11 14735-95 MAIN JAW PIN 1
12 14736-95 SECONDARY JAW PIN 1
13 14737-95 BAR/JAW LINK 1
Please order replacement parts by PART NO. and DESCRIPTION
ITEM PART # DESCRIPTION QTY
14 14741-76 5th WHEEL DOUBLE PIVOT HEAD 1
15 14743-95 CAPTURE PLATE ASSEMBLY 2
16 14747 SCREW, .313NC X .25 SOCKET HD CAP 2
17 14749 SNAP RING EXT FOR .50 SHAFT 1
18 14750 SNAP RING EXT F/ .75 SHAFT 1
19 14865 ROLL PIN, .25 X 1.00 2
20 14867-95 LEVER ARM BAR 1
21 14869-95 LOCK BAR 1
22 15769 URETHANE BUMPER 1
23 15894 CAPTURE PLATE MOUNT 2
24 15934 HANDLE ASSEMBLY 1
25 16338 BOLT, .438NC X 1 SERR FLG HEX GR5 8
Please order replacement parts by PART NO. and DESCRIPTION
PARTS BREAKDOWN
6081 PIVOT HEAD PARTS BREAKDOWN

Related product manuals