EasyManua.ls Logo

Deming 4021H - Cross-Sections & Parts List

Default Icon
14 pages
Print Icon
To Next Page IconTo Next Page
To Next Page IconTo Next Page
To Previous Page IconTo Previous Page
To Previous Page IconTo Previous Page
Loading...
10
* Recommended spare parts
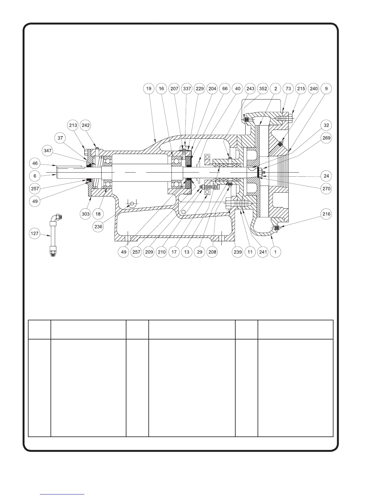
Item No. Name of Part Item No. Name of Part Item No. Name of Part
1
2
6
9
11
*13
*16
17
*18
19
24
*29
32
37
40
46
Casing
Impeller
Pump Shaft
Suction Cover
Packing Box Cover
Packing
Ball Bearing (Inboard)
Split Gland
Ball Bearing (Outboard)
Frame
Impeller Nut
Lantern Ring
Impeller Key
Bearing Cover (Outboard)
De ector
Coupling Key
*49
66
*73
127
203
204
207
208
209
210
213
214
215
216
229
Bearing Cover Seal (Outboard)
Shaft Adjusting Unit
Casing Gasket
Tubing Assembly with Connectors
Name Plate
Adjusting Lock Nut
Grease Fitting
Pipe Plug
Cap Screw, Machine Bolt, or Stud
Hex Nut
Cap Screw
Drive Screw
Cap Screws
Pipe Plug
Lockwasher
236
239
240
*241
242
243
257
*269
270
*303
337
347
352
Pipe Plug
Cap Screws
Pipe Plug
Stuf ng Box Gasket
Grease Fitting
Grease Fitting
Clamping Ring
Cotter Pin
Impeller Washer
Bearing Cover Gasket
Cap Screw
Spring
Pipe Plug

Related product manuals