EasyManua.ls Logo

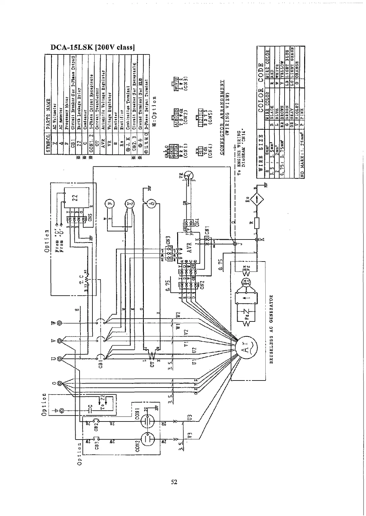
Denyo DCA-13LSK - Options Instruction Manual; Earth Leakage Relay

Denyo DCA-13LSK
61 pages
Print Icon
To Next Page IconTo Next Page
To Next Page IconTo Next Page
To Previous Page IconTo Previous Page
To Previous Page IconTo Previous Page
Loading...
52

Related product manuals