EasyManua.ls Logo

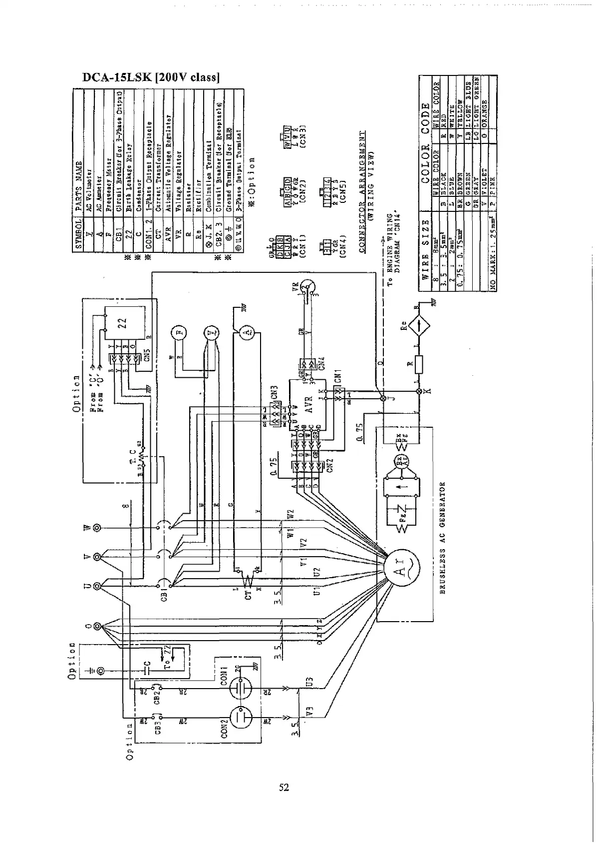
Denyo DF-0140K - Generator connection diagram DCA-15 LSK [200 V class]

Denyo DF-0140K
61 pages
Print Icon
To Next Page IconTo Next Page
To Next Page IconTo Next Page
To Previous Page IconTo Previous Page
To Previous Page IconTo Previous Page
Loading...
52

Related product manuals