EasyManua.ls Logo

DIMOEL MOOV-SEZ50 - Limite Demploi

DIMOEL MOOV-SEZ50
Print Icon
To Next Page IconTo Next Page
To Next Page IconTo Next Page
To Previous Page IconTo Previous Page
To Previous Page IconTo Previous Page
Loading...
FRANÇAIS
18
LIMITE D'EMPLOI
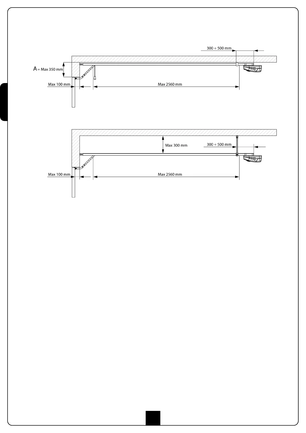
MOOV-SEZ50 est en condition d'automatiser portes sectionnelles avec hauteur jusqu'à maximum 2,25 m, portes basculantes à ressort
jusqu'à 2,25 m. et portes basculantes à contrepoids jusqu'à 2,45 m. Pour un bon succès de l'installation, respecter ces quotas.
ATTENTION: Si la mesure A indiquée dans la figure ci-dessus dépasse 350 mm il est nécessaire d'installer le kit accessoire code 163203.
Respecter les limites d'utilisation reportées dans la figure suivante.

Table of Contents

Related product manuals