EasyManua.ls Logo

Dimplex LA 6 MI - LA 6 MI and LA 9 MI Spare parts

Dimplex LA 6 MI
63 pages
Print Icon
To Next Page IconTo Next Page
To Next Page IconTo Next Page
To Previous Page IconTo Previous Page
To Previous Page IconTo Previous Page
Loading...
Page 49
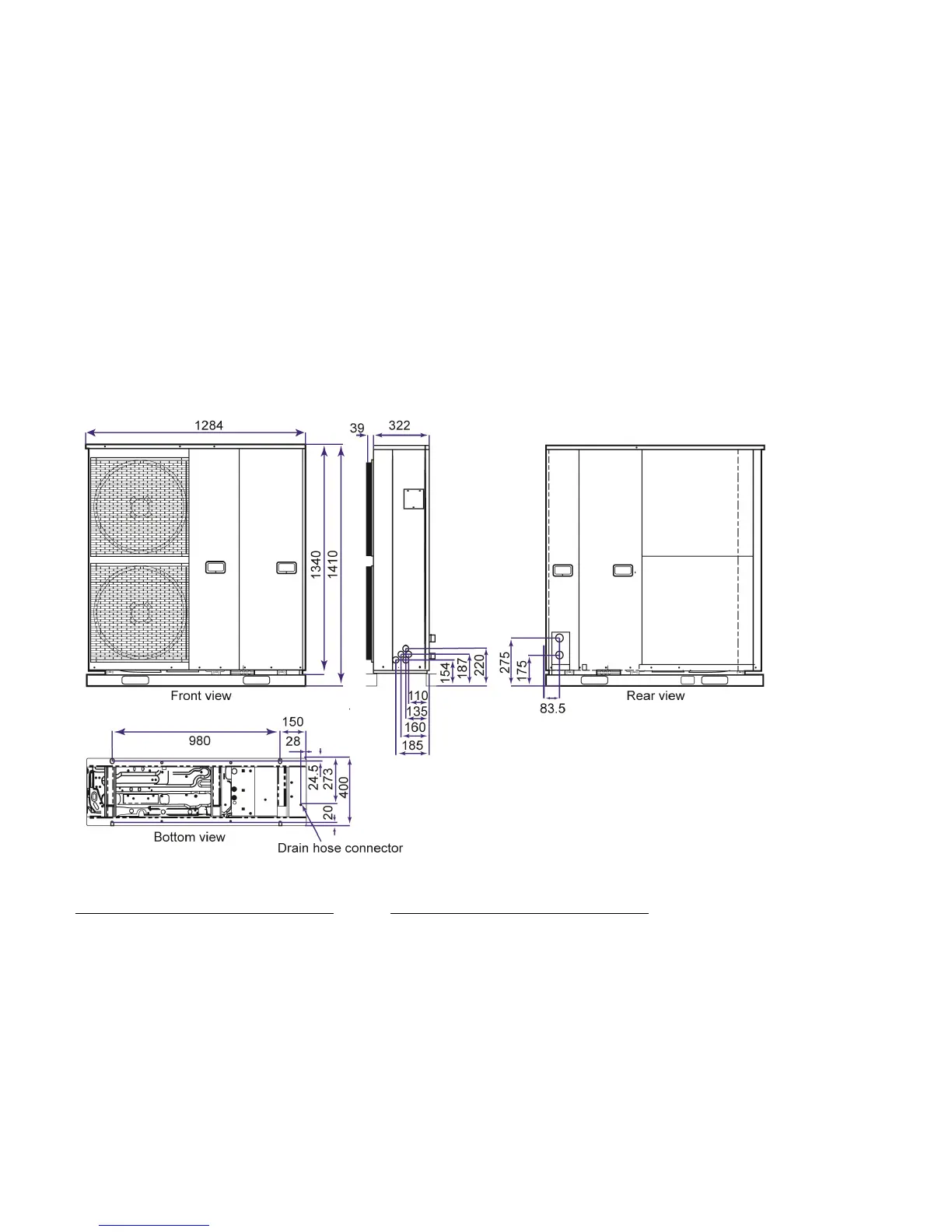
Product Dimensions LA 12 MI and LA 16 MI

Table of Contents

Other manuals for Dimplex LA 6 MI

Related product manuals