EasyManua.ls Logo

Dimplex LAW 9IMR - Page 85

Dimplex LAW 9IMR
Print Icon
To Next Page IconTo Next Page
To Next Page IconTo Next Page
To Previous Page IconTo Previous Page
To Previous Page IconTo Previous Page
Loading...
www.dimplex.de 452162.66.04 · FD 9606 A-XXI
Anhang · Appendix · Annexes
LAW 6IMR - LAW 14ITR
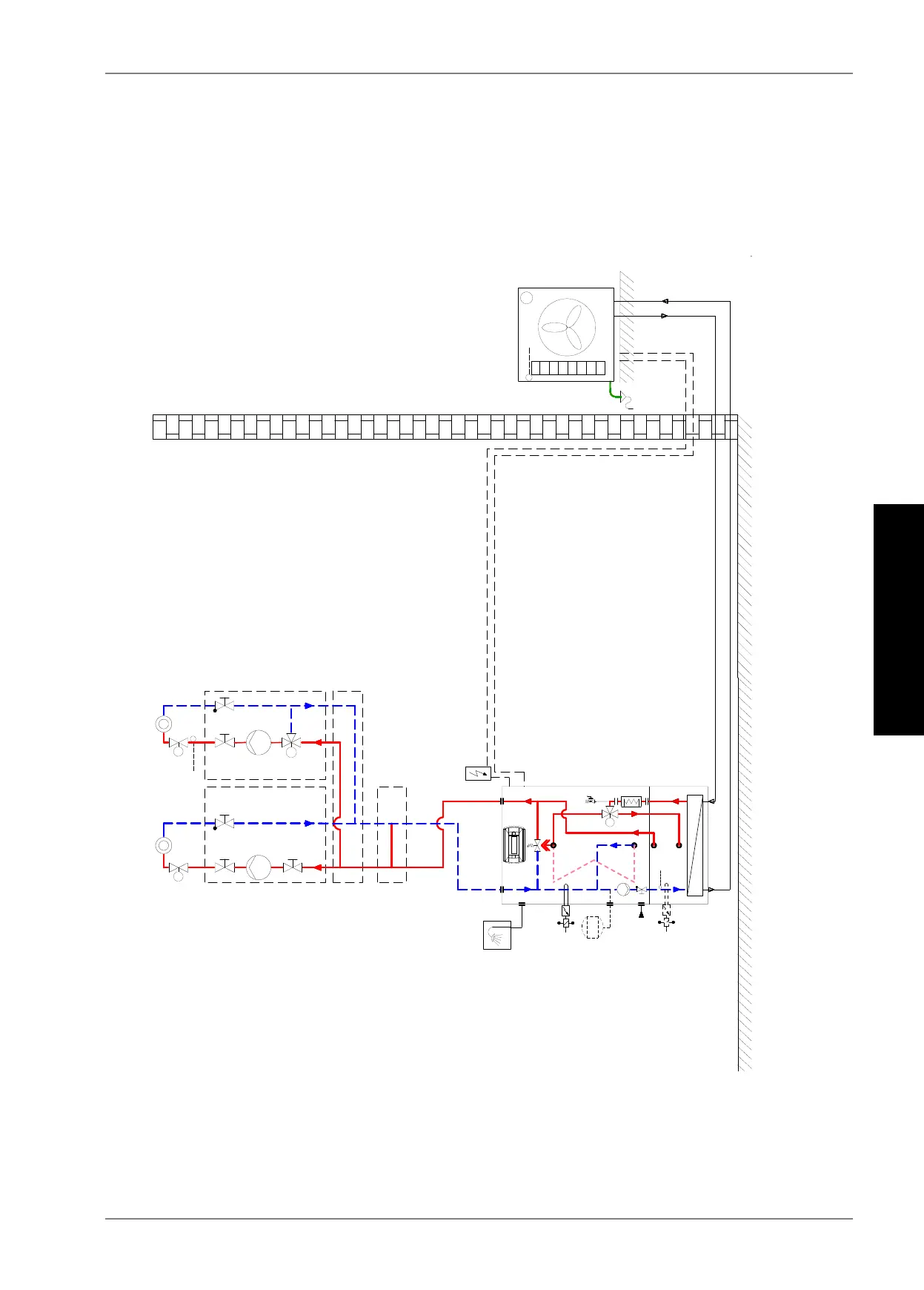
4.2 Monoenergetische Anlage mit zwei Heizkreisen und
Warmwasserbereitung /
Mono energy system with two heating circuits and domestic hot water
preparation / Installation mono-énergétique avec deux circuits de
chauffage et production d'eau chaude sanitaire
(N1-N05)
M13
WWM
EB KPV
VTB
(N1-N011)
M15
(N1-U6)
R5
(N1-N012/N013)
M22
MMH
T
TC
M
R1
T
1.7
E10.1
E9
T
R2
M16
N1
M
E10.1
TC

Table of Contents

Related product manuals