EasyManua.ls Logo

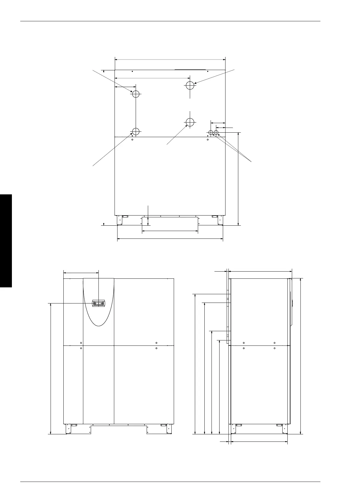
Dimplex SIH 40TE - Maßbild; Dimensioned Drawing; Schéma Coté

Dimplex SIH 40TE
Print Icon
To Next Page IconTo Next Page
To Next Page IconTo Next Page
To Previous Page IconTo Previous Page
To Previous Page IconTo Previous Page
Loading...
A-II 452234.66.08 · FD 9310 www.dimplex.de
Anhang · Appendix · Annexes
SIH 40TE
1 Maßbild / Dimensioned drawing / Schéma coté











FDDSSUR[HQY
´,QQHQ$XHQJHZLQGH
:lUPHTXHOOH
(LQJDQJLQ:3
´LQWHUQDOH[WHUQDOWKUHDG
+HDWVRXUFH
+HDWSXPSLQOHW
)LOHWDJHLQWH[W´
6RXUFHGHFKDOHXU
(QWUpHGDQVOD3$&
,QQHQ$XHQJHZLQGH
:lUPHTXHOOH
$XVJDQJDXV:3
´LQWHUQDOH[WHUQDOWKUHDG
+HDWVRXUFH
+HDWSXPSRXWOHW
)LOHWDJHLQWH[W´
6RXUFHGHFKDOHXU
6RUWLHGHOD3$&
(OHNWUROHLWXQJHQ
(OHFWULFOLQHV
/LJQHVpOHFWULTXHV
,QQHQ$XHQJHZLQGH
+HL]XQJVUFNODXI
(LQJDQJLQ:3
´LQWHUQDOH[WHUQDOWKUHDG
+HDWLQJZDWHUUHWXUQ
+HDWSXPSLQOHW
)LOHWDJHLQWH[W´
5HWRXUGHOD3$&
(QWUpHGDQVOD3$&
,QQHQ$XHQJHZLQGH
+HL]XQJVYRUODXI
$XVJDQJDXV:3
´LQWHUQDOH[WHUQDOWKUHDG
+HDWLQJZDWHUVXSSO\
+HDWSXPSRXWOHW
)LOHWDJHLQWH[W´
$OOHUHDXGHFKDXIIDJH
6RUWLHGHOD3$&

Table of Contents

Related product manuals