EasyManua.ls Logo

DINGLI JCPT1523DC - Page 64

DINGLI JCPT1523DC
66 pages
Print Icon
To Next Page IconTo Next Page
To Next Page IconTo Next Page
To Previous Page IconTo Previous Page
To Previous Page IconTo Previous Page
Loading...
OPERATORS MANUAL with Maintenance Information
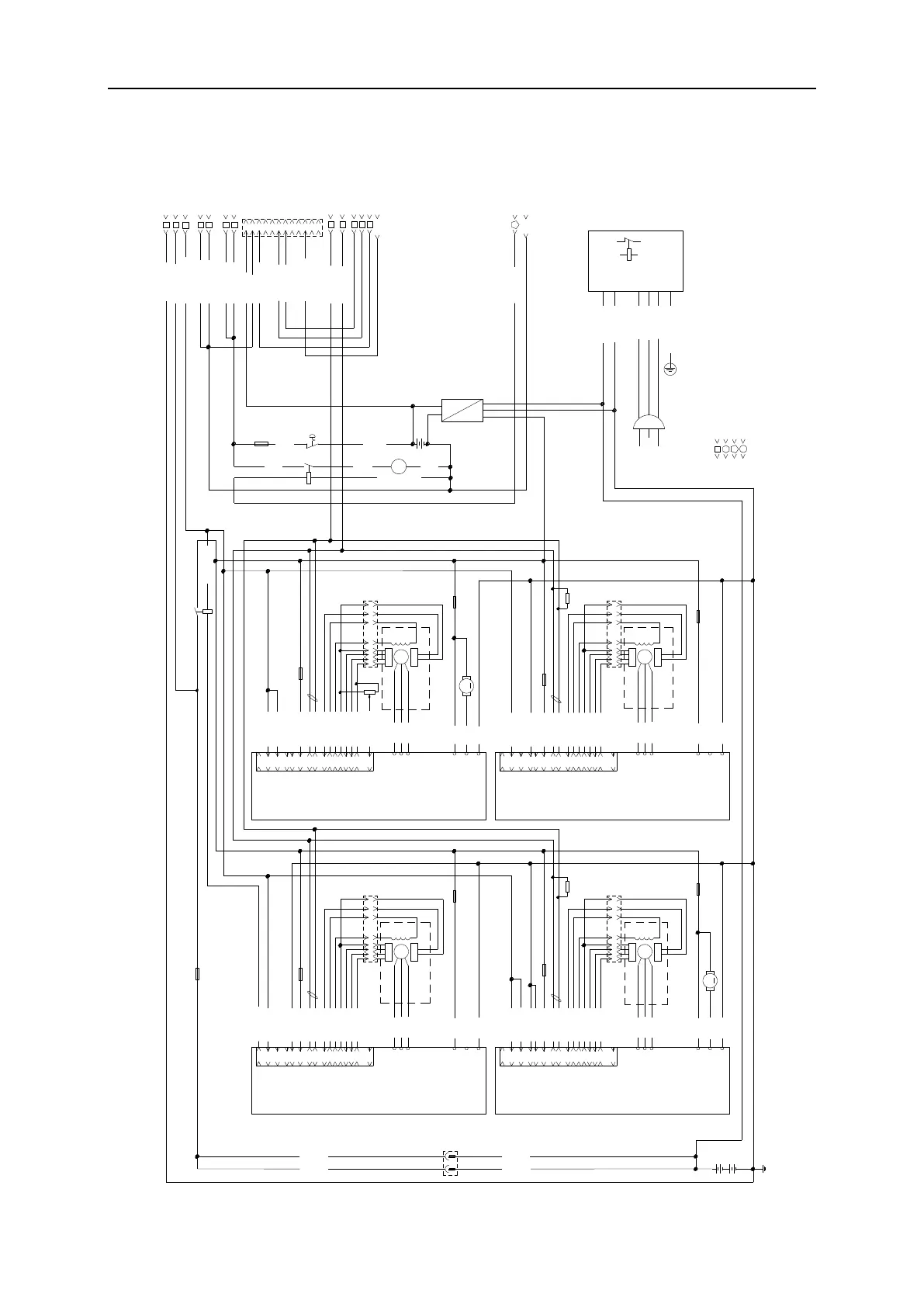
Schematic
59
Electrical Schematic
R2 120Ω
GND
12
210C WH(18)
12VDC
48VDC
DC_DC
0130 WH(20)
SR1
RD (00)
RD (00)
RD (00)
RD (00)
XB1
9
0318 BK(20) 0218 BK (20)
RD (2)
RD (2)
RD (2)
RD (2)
RD (2)
RD (2)
RD (2)
RD (2)
RD (2)
AGND BU(16)
FU12 600A
MC4
U
V
W
B+
B-
P
A4
A5
A3
A28
A27
A22
A2
A12
A10
A13
A14
A25
A20
A30
A18
A21
0421 BK(20)
MC3
U
V
W
B+
B-
P
A4
A5
A3
A28
A27
A22
A2
A12
A10
A13
A14
A25
A20
A30
A18
A21
MC1
U
V
W
B+
B-
P
A4
A5
A3
A28
A27
A22
A2
A12
A10
A13
A14
A25
A20
A30
A18
A21
0120 OR(20)
MC2
U
V
W
B+
B-
P
A4
A5
A3
A28
A27
A22
A2
A12
A10
A13
A14
A25
A20
A30
A18
A21
0321 BK(20)
6
FU10 350A
FU6 10A
0310 OR(20)
0203 RD(16)
0222 WH(20)
0202 BN(20)
0204 BU(20)
0205 GY(20)
0213 YE(20)
0214 GN(20)
0225 RD(20)
M2
3
~
BK (0)
RD (0)
M6
0228 YE(20)
0227 GN(20)
BK (0)
0210 OR(20)
4
GND0-2 BK(14)
0320 OR(20)
FU5 10A
FU9 350A
GND0-1 BK(14)
001-1 RD(14)
2
001-2 RD(14)
+
_
L
N
L01 BN(16)
N01 BU(16)
CH-6 GN/YE(16)
CH-7 BN(10)
CH-8 BN(10)
GS1
PE1 BN(16)
PE
13
3
1
FU11 350A
7
48V-1 OR(18)
12
209B YE(20)
205C GN(20)
0413 YE(20)
0414 GN(20)
0425 RD(20)
M4
3
~
BK (0)
RD (0)
RD (2)
RD (2)
RD (2)
0103 RD(16)
FU4 10A
0122 WH(20)
0102 BN(20)
0104 BU(20)
0105 GY(20)
0113 YE(20)
0114 GN(20)
0125 RD(20)
M1
3
~
BK (0)
RD (0)
0412 WH(18)
M5
FU8 350A
0428 YE(20)
0427 GN(20)
0128 YE (20)
0127 GN (20)
BK (0)
48V OUT OR(14)
0110 OR(20)
0303 RD(16)
0328 YE(20)
0322 WH(20)
0302 BN(20)
0304 BU(20)
0305 GY(20)
0327 GN(20)
0313 YE(20)
0314 GN(20)
0325 RD(20)
M3
3
~
KM1
BK (0)
RD (0)
48V IN OR(14)
0403 RD(16)
0410 OR(20)
FU7 10A
0422 WH(20)
0402 BN(20)
0404 BU(20)
0405 GY(20)
6 5 4 3 7 8 2 1
6 5 4 3 7 8 2 1
KM2
M7
Emergency
Pump
GND-EV13 (18)
RD (5)
BK (5)
RD(5)
SB3
Power
Switch
FU13 150A
6 5 4 3 7 8 2 1
6 5 4 3 7 8 2 1
R1 120Ω
16
=16 Position SIBAS Connector CT1
24
=24 Position SIBAS Connector CT2
24
=24 Position SIBAS Connector CT3
16
=16 Position SIBAS Connector CT4
GB1
Battery
Right Front Drive Moter
Motor Control
Temperature Sensor
Brake
Pump
GB2
Battery
Connector
Right Rear Drive Moter
Motor Control
Temperature Sensor
Brake
Left Front Drive Moter
Motor Control
Temperature Sensor
Brake
Left Rear Drive Moter
Motor Control
Temperature Sensor
Brake
Pump
Contactor
Contactor
Charger
GB3
Battery
Steer Angle Sensor
RD(5)
RD (5)
14
8
ACC+ WH(20)
TIME WH(20)
LOCK BU(20)
HORN2 WH(18)
GPS
Connector
HORN
Power
GND
Key Switch
Hourmeter
LOCK
Horn
1
2
3
4
5
6
7
8
9
10
11
12
B+ RD(18)
B- BK(18)
16

Related product manuals