EasyManua.ls Logo

DoorKing 1810 - Auto-Dialer Wiring Diagram - Multiple Units

DoorKing 1810
65 pages
Print Icon
To Next Page IconTo Next Page
To Next Page IconTo Next Page
To Previous Page IconTo Previous Page
To Previous Page IconTo Previous Page
Loading...
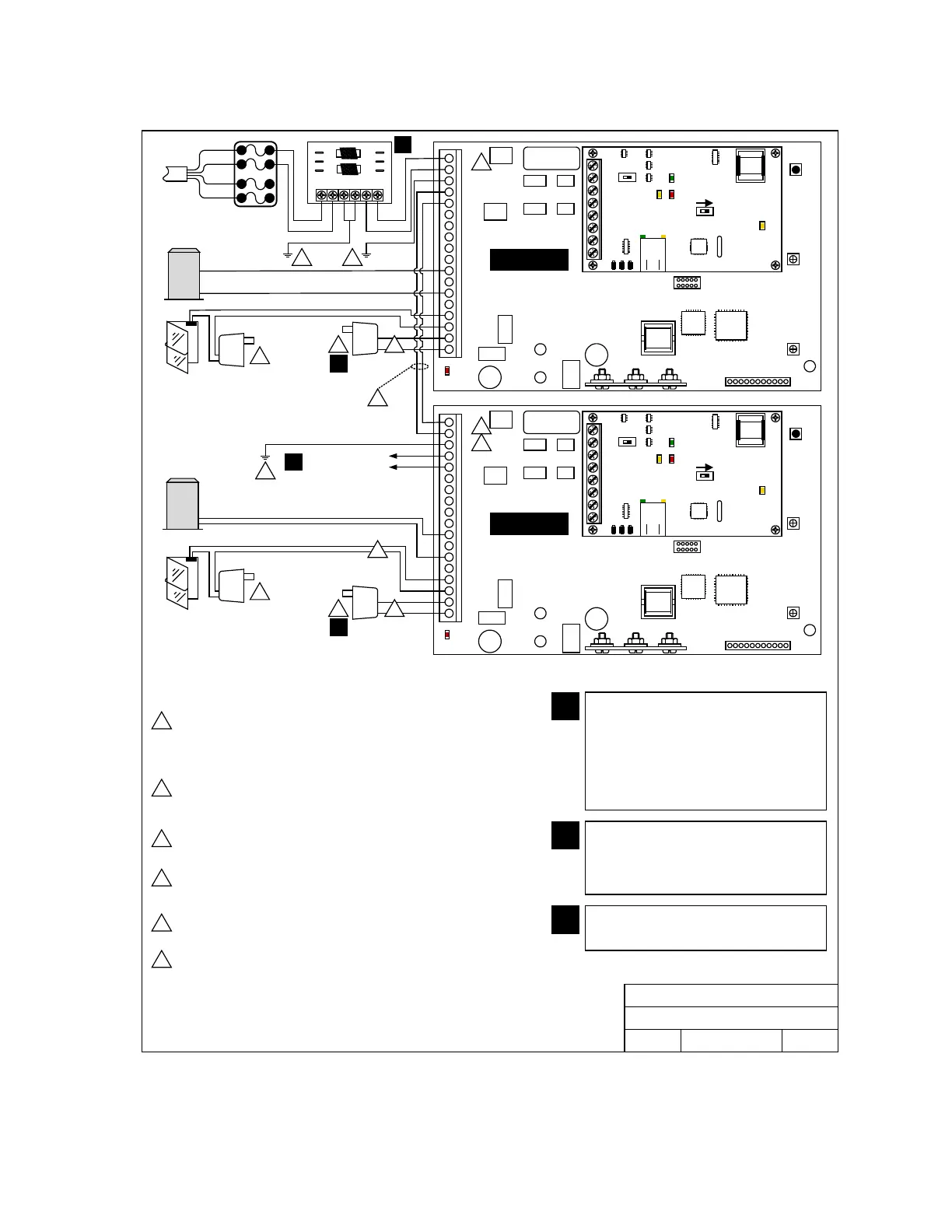
1.5 Telephone Auto-Dialer Wiring – Multiple Units
DOORKING, INC., INGLEWOOD, CA 90301
Date: Dwg. No. Rev.
Title:
1/12
C
M1810-AP-3-C
Access Plus System Auto-Dialer Wiring
Basic wire connections – multiple units.
1
Magnetic locks or electric strikes must be powered from a separate UL Listed
power transformer. Do not power strikes or magnetic locks from the 1810 power
transformer.
3
1
2
2
4
6
A
Use supplied 16.5 VAC, 20 VA power transformer or UL Listed equivalent.
DO NOT Power this device with a 24 Volt transformer or source voltage.
Use only twisted pair telephone wire that is rated for direct underground burial.
DO NOT use wire that is intended for indoor applications . Recommend
Cat5e Gel Filled (flooded) UV Resistant Direct Burial Cable in conduit. DO
NOT run telephone wires and high voltage wires in the same conduit .
Check the phone wire chart for wire size / distance.
Check for polarity on the phone "IN" wires, terminals 1 and 2. Terminal 2 must be
positive with respect to terminal 1. Set a VOM meter to measure DC volts. Place
the positive lead on terminal 2 and the negative lead on terminal 1. If the meter
shows a positive voltage - OK. If the meter shows a negative voltage (needle
moves off scale to the left), reverse the wires on terminals 1 and 2.
4
5
6
6
Use minimum 18 AWG wire for runs up to 100 feet; 16 AWG wire for runs up to
200 feet. It is recommended to keep power wire runs as short as possible.
Check the power wire chart for wire size / distance.
B
A
Optional DoorKing Surge Suppresser P/N 1877-010 (or
equivalent) highly recommended.
For best protection, surge suppresser ground wire must be
3-ft. or less in length. Use minimum 12 AWG wire.
Ring is Positive with respect to Tip terminal. See
6
This device is powered by a 16.5 VAC
transformer. DO NOT power this device with a
24 VAC transformer or power source.
C
Maintain polarity when connecting multiple Access Plus
units together! A maximum of five (5) Access Plus units
can be connected to the same phone line in this
manner.
When connecting multiple (more than 1) Access Plus
units, the 1816 Access Plus telephone intercom feature
cannot be used.
Terminal 5 connects to Terminal 1 of next Access Plus unit.
Terminal 4 connects to Terminal 2 of next Access Plus unit.
Ring
Tip
Ring
Tip
Gnd
Gnd
Blue/White (-)
White/Blue (+)
From Phone
Company
Blue/White
Orange/White
White/Orange
White/Blue
Blue/White
White/Blue
Vehicular Gate
Operator
Pedestrian
Gate / Door
White/Blue (+)
Blue/White (-)
3
16.5 VAC
20 VA
3
16.5 VAC
20 VA
White/Blue
Blue/White
Vehicular Gate
Operator
Pedestrian
Gate / Door
Mag Lock
Power
4
Mag Lock
Power
Terminal 2 Next 1810 AP
Terminal 1 Next 1810 AP
B
2
5
5
6
C
C
1
st
Unit
2
nd
Unit
Be sure to properly ground all devices. Minimum 12 AWG wire. Surge devices
must have a ground point within 3-ft of the device.
6
1
2
3
4
5
6
7
8
9
10
11
12
13
14
15
16
17
18
Mic
Vol
Master
Code
1 2 3 4 5 6 7 8 9 1011
Speaker
Vol
Keypad
ON
SW1 MODEM / TCP ENB
1
2
3
4
5
6
7
8
BAD DNS
RS-485 RX
LAN DOWN
Phone Line
In Use
LAN
Connection
Data
Transmit
SW2
ON
TERMINATION
OFF
1
2
3
4
5
6
7
8
9
10
11
12
13
14
15
16
17
18
Mic
Vol
Master
Code
1 2 3 4 5 6 7 8 9 1011
Speaker
Vol
Keypad
ON
SW1 MODEM / TCP ENB
1
2
3
4
5
6
7
8
BAD DNS
RS-485 RX
LAN DOWN
Phone Line
In Use
LAN
Conne
c
ti
on
Data
Transmit
SW2
ON
TERMINATION
OFF
1810-162-L-5-15 Page 21

Table of Contents

Other manuals for DoorKing 1810

Related product manuals