EasyManua.ls Logo

DoorKing 1810 - Telephone Intercom Wiring

DoorKing 1810
65 pages
Print Icon
To Next Page IconTo Next Page
To Next Page IconTo Next Page
To Previous Page IconTo Previous Page
To Previous Page IconTo Previous Page
Loading...
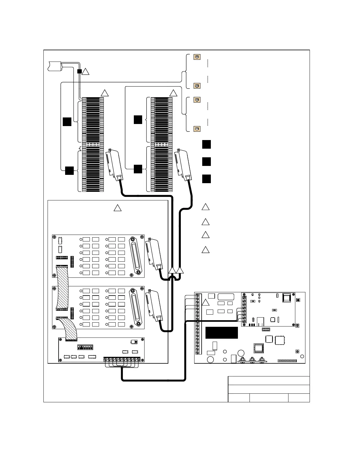
1.6 Telephone Intercom Wiring
1982 Relay
Board
1881 Decoder Board
B
B
RJ71C
Block 1
RJ71C
Block 2
C
C
Relay 01
Relay 11
Thru
Relay 12
Relay 23
Thru
1816 Access Plus Cabinet
Note: Relay 00 is reserved for Central Office
(C.O.) phone line for Access Plus Auto-dialer
and modem programming.
Directory codes 01 to 23 are reserved for use
with the 1816 Access Plus Cabinet. Program
these directory codes if using this option.
Only a single (1) Access Plus system can
be used when interfacing with the 1816
Access Plus cabinet.
DOORKING, INC., INGLEWOOD, CA 90301
Date: Dwg. No. Rev.
Title:
1/12
E
M1810-AP-5-E
Access Plus System Intercom Wiring
Interface with 1816 Access Plus Cabinet
B
Incoming Central Office (C.O.) phone lines for
individual apartments.
C
Outgoing phones lines to individual apartments.
1
1816 Access Plus cabinet comes standard with Decoder
Board and one (1) 1982-010 Relay Board. Second Relay
Board is ordered separately.
Connecting cable is ordered separately. One (1) connecting
cable is required for each Relay Board used.
RJ71C Phone Block is ordered separately. One (1) RJ71C is
required for each Relay Board used.
2
3
4
3
1
22
3
From Phone
Company
A
Incoming Central Office (C.O.) phone line used for
Access Plus Auto-Dialer and modem programming.
Optional Central Office phone line is required only if the auto-
dialer and/or modem programming function will be used
along with the no-phone-line function of the 1810 AP.
4
4
A
Not Used
Access Plus
System
1
2
3
4
5
6
7
8
1
5
2
3
4
6
8
9
7
12
13
14
15
10
11
17
16
18
Page 22 1810-162-L-5-15

Table of Contents

Other manuals for DoorKing 1810

Related product manuals