EasyManua.ls Logo

Doosan DP158LCF - General Information; High Sulfur Content in Diesel Fuel

Doosan DP158LCF
160 pages
Print Icon
To Next Page IconTo Next Page
To Next Page IconTo Next Page
To Previous Page IconTo Previous Page
To Previous Page IconTo Previous Page
Loading...
8. Fuel system
131
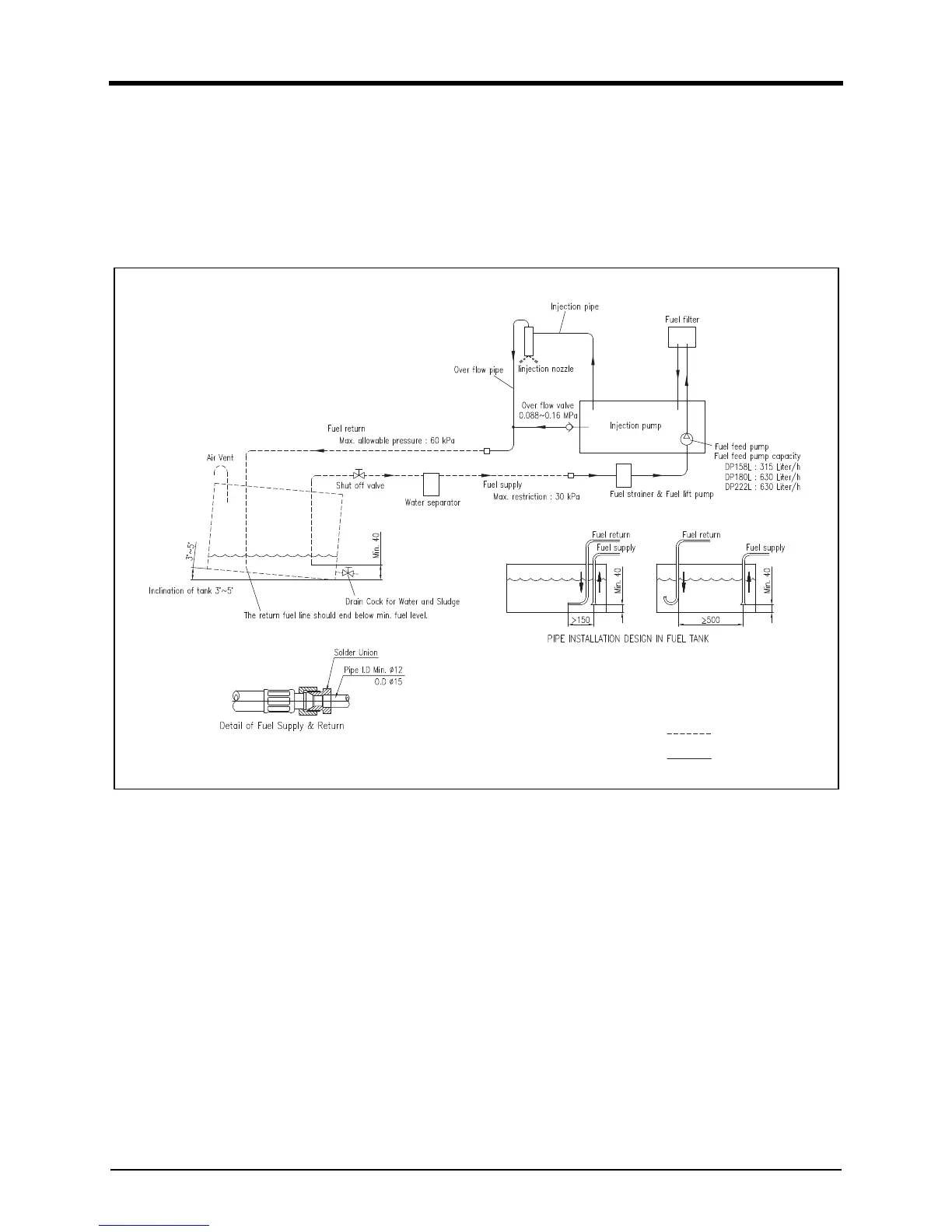
General information
General Information
The fuel is supplied by the fuel delivery pump through
fuel filter to the fuel injection pump which delivers the fuel
to the fuel injection nozzle.
The fuel is injected to the cylinder through the nozzle
assembled to the fuel injection nozzle holder of the
cylinder head.
Over-supplied fuel returns to the fuel tank through the
return pipe.
DV2213102B
The fuel lines should have a sufficient inner diameter.
The fuel lines should be routed so that the fuel is not
excessively heated by the heat radiation from the engine.
The pipes should be laid as straight as possible without
sharp bends. Make sure the pipes are protected against
mechanical wear and well fastened to avoid vibrations.
It is important that there are no fuel leakages or air infil-
tration neither on the suction or return line installation.
Therefore securely fasten all the connections of fuel line.
The return line back to the fuel tank must not be adjoin
the suction line.
In case of diesel fuel containing high water content due
to insufficient fuel quality, maintenance difficulty or envi-
ronmental adversity, an extra water separator with
adequate capacity must be installed as user supply
scope.
High Sulfur content in diesel fuel
Doosan diesel engines can be operated with fuels Whose
sulfur content is max. 0.05wt%.
Fuels with a sulfur content of > 0.05wt% are not
Permitted as they result in increased corrosion and Hence
greatly reduce the service life of the engines.
The oil and oil filter change intervals must be halved If
the sulfur content is > 0.02wt%.
User Supply
Doosan Supply

Table of Contents

Related product manuals