EasyManua.ls Logo

Dot Hill Systems 4824 - Single-Controller Configurations; Dual-Controller Configurations; Connecting Hosts: Direct Attach-One Server;One Hba;Single Path

Default Icon
145 pages
Print Icon
To Next Page IconTo Next Page
To Next Page IconTo Next Page
To Previous Page IconTo Previous Page
To Previous Page IconTo Previous Page
Loading...
AssuredSAN 4004 Series Setup Guide 61
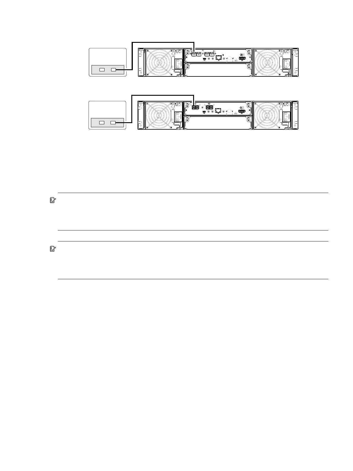
One server/one HBA/single path
Figure 57 Connecting hosts: direct attach—one server/one HBA/single path
Figure 57 (lower illustration) shows host connection of an HD mini-SAS controller module using standard
SAS cables.
The two illustrations above show an IOM blank covering the empty IOM slot (0B) on the controller
enclosure. The remaining illustrations in the section feature enclosures equipped with dual IOMs.
IMPORTANT: If the 4004 Series (2U12 or 2U24) controller enclosure is configured with a single controller
module, the controller module must be installed in the upper slot, and an I/O module blank must be
installed in the lower slot (shown above). This configuration is required to allow sufficient air flow through
the enclosure during operation.
IMPORTANT: 2U48 and 4U56 controller enclosures support dual-controller configuration only.
Single-controller support is provided only when a controller fails over to its partner controller. A controller
module must be installed in each IOM slot to ensure sufficient air flow through the enclosure during
operation.
See the “Replacing a controller or expansion module” topic within the AssuredSAN 4004 Series FRU
Installation and Replacement Guide for additional information about installing IOMs.
Dual-controller configurations
A dual-controller configuration improves application availability because in the event of a controller failure,
the affected controller fails over to the partner controller with little interruption to data flow. A failed
controller can be replaced without the need to shut down the storage system.
In a dual-controller system, hosts use LUN-identifying information from both controllers to determine that up
to four paths are available to a given storage volume. Assuming MPIO software is installed, a host can use
any available data path to access a volume owned by either controller. The path providing the best
performance is through host ports on the volume’s owning controller. Both controllers share one set of
1,024 LUNs (0-1,023) for use in mapping volumes to hosts (see “ULP” in the Storage Management Guide).
The illustrations below show dual-controller configurations for 4004 Series controller enclosures equipped
with either CNC ports or 12 Gb HD mini-SAS host ports.
Server
4824/4834/4844
IOM blank
0A
0B
Server
4524/4534/4544
IOM blank
0A
0B

Table of Contents

Related product manuals