EasyManua.ls Logo

DSC PC4820 - PC4820 Access Control Module Wiring Diagram

DSC PC4820
16 pages
Print Icon
To Previous Page IconTo Previous Page
To Previous Page IconTo Previous Page
Loading...
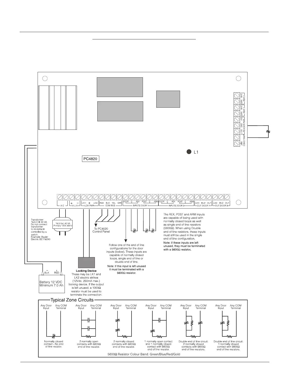
Battery and AC Connections
Combus Connections
PC4820 Access Control Module
W i r i n g D i a g r a m
Lock device and Reader Connections
Typical Zone Circuits
ii