EasyManua.ls Logo

DSC PC5532Z - Appendix A - Contact ID

DSC PC5532Z
44 pages
Print Icon
To Next Page IconTo Next Page
To Next Page IconTo Next Page
To Previous Page IconTo Previous Page
To Previous Page IconTo Previous Page
Loading...
Español
39
Lineamientos para la ubicación de de-
tectores de humo
Las investigaciones han mostrado que los incendios hos-
tiles en los hogares generan humo en mayor o menor
proporción. Los experimentos con incendios típicos en
hogares indican que cantidades detectables de humo
preceden a niveles detectables de calor en la mayoría de
los casos. Por este motivo, las alarmas de humo deberían
estar instaladas fuera de cada área de descanso y en cada
planta de la vivienda.
La siguiente información es una guía general solamente y
se recomienda consultar los códigos y regulaciones lo-
cales al ubicar e instalar alarmas de humo.
Se recomienda instalar alarmas de humo adicionales
además de las requeridas para la protección mínima. Las
áreas adicionales que deberían estar protegidas incluye: el
sótano; dormitorios, especialmente donde duermen fuma-
dores; comedores; sitios con hornos o de salas de trabajo y
todos los corredores que no estén protegidos por las uni-
dades requeridas.
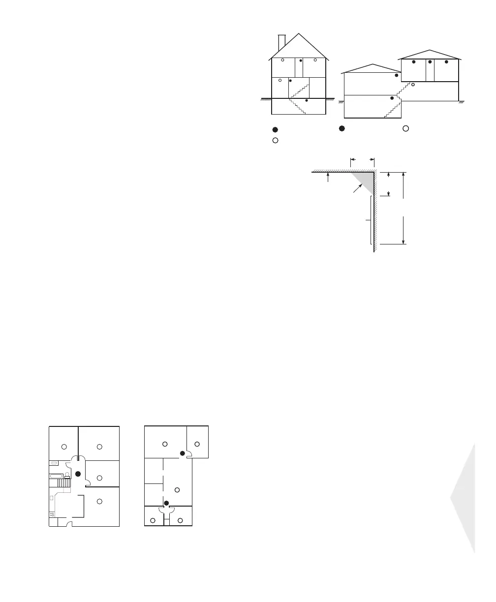
En los cielorasos, los detectores pueden espaciarse a 9.1m
(30 pie) cada uno, como guía. Otras distancias pueden ser
requeridas dependiendo de la altura del cieloraso, corri-
entes de aire, la presencia de viguetas, cieloraso sin ais-
lación, etc. Consulte el Código Nacional de Alarma de
Incendio NFPA 72, CAN/ULC-S553-M86 u otras normas
nacionales apropiadas en recomendaciones de insta-
lación.
No ubique detectores de humo en la parte superior de
cielorasos cerrados o tejados; la no circulación de aire en
estos lugares produce que la unidad no detecte el humo.
Evite áreas con mucha corriente de aire, tales como cer-
canas a puertas, ventiladores o ventanas. El movimiento
de aire rápido alrededor del detector puede impedir que
el humo ingrese a la unidad.
No ubique detectores en áreas con niveles de humedad
alto.
No coloque detectores en áreas donde la temperatura so-
brepasa los 38oC (100oF) o por debajo de los 5oC (41oF).
Los detectores de humo deberían ser instalados siempre
de acuerdo con el Código Nacional de Alarma de Incen-
dio NFPA 72,. Los detectores de humo deberían estar ubi-
cados siempre de acuerdo con:
NFPA 72,: ‘Los detectores de humo deben ser instalados
fuera de cada área de descanso en un lugar continuo in-
mediato de los dormitorios y en cada planta adicional de
la unidad habitacional, incluyendo sótano y excluyendo
espacios reducidos y áticos sin finalizar. En una construc-
ción nueva, el detector de humo debe ser instalado en
cada área de descanso’.
NFPA 72,: ’Disposición para dos niveles. Los detectores de
humo son necesarios en las ubicaciones que se muestran.
Los detectores de humo son opcionales donde no existe
una puerta entre la sala de estar y la sala de recreación’.
Figura 1
Dormitorio Dormitorio
Dormitorio
Sala
Cocina
Figura 2
Dormitorio
Dormitorio
Dormitorio
Sala
Cocina
Comedor
Salón familiar
Figura 3
DormitorioDormitorio
Sótano
Sala
Comedor
Alarmas de Humo para
una protección mínima
Alarmas de Humo para
una mejor protección
Figura 3A
Vestíbulo
Cuarto de Esparcimiento
Opcional
Arreglo de Dos Niveles
Alarmas de Humo para
una protección mínima
Alarmas de Humo para
una mejor protección
DormitorioDormitorio
Sala
Sótano
Figura 4
NUNCA
AQUI
Posición
aceptable
Parte alta del
detector se
acepta aqui
12 pulgadas
(0.3m)
máxima
4pulgadas
(0.1m)
máxima
4 pulgadas
(0.1m)
Cielo raso
Pared
NOTA: Las medidas mostradas
están en el borde de más
cercano a el detector

Table of Contents

Other manuals for DSC PC5532Z

Related product manuals