EasyManua.ls Logo

Dux 25V1 - Specifications

Dux 25V1
13 pages
Print Icon
To Previous Page IconTo Previous Page
To Previous Page IconTo Previous Page
Loading...
13
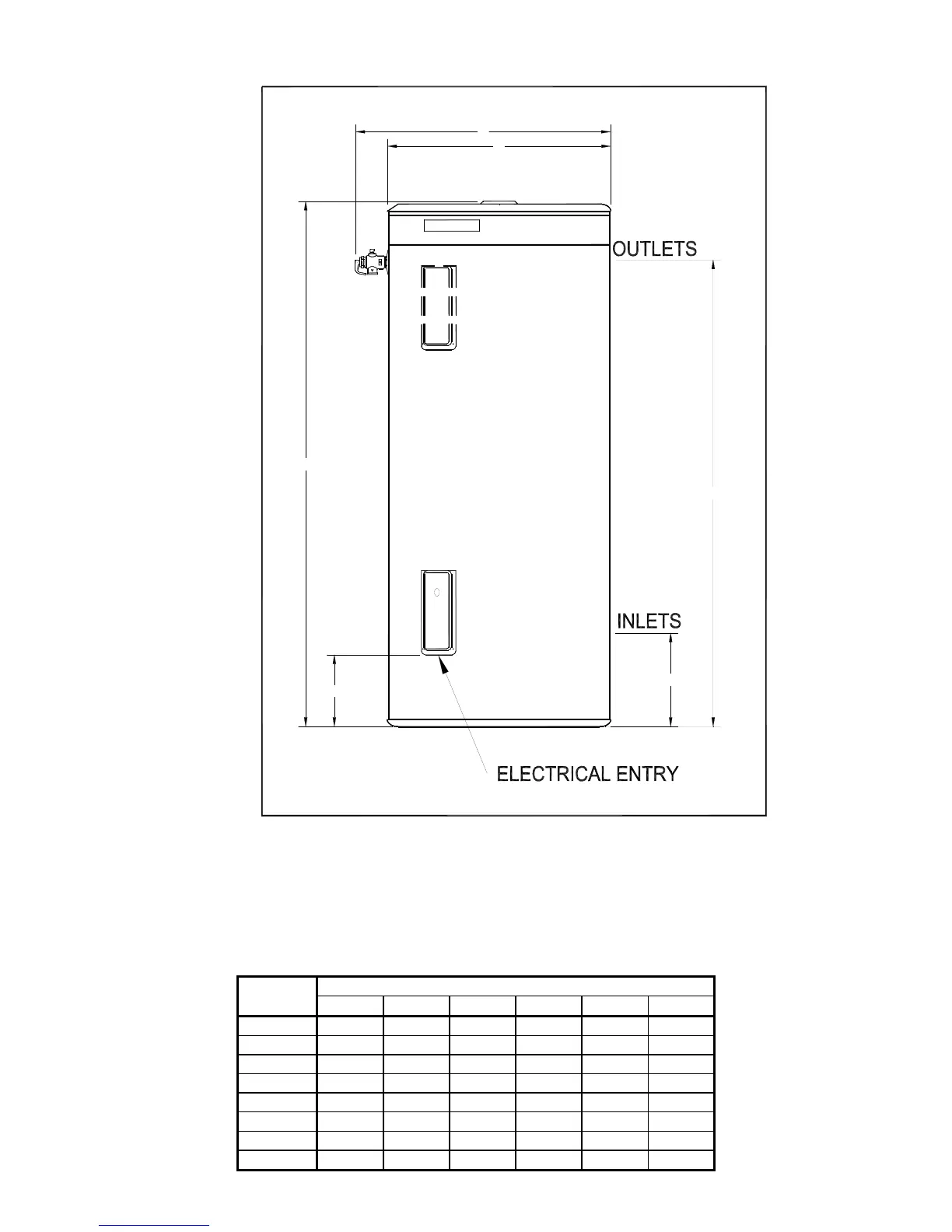
SPECIFICATIONS
Heater Dimensions (mm)
Size (L) A B C D E F
25 418 485 404 255 132 75
50 673 485 404 510 132 75
80 1007 524 459 836 170 80
125 1062 597 532 857 206 116
160 1317 597 532 1112 206 116
250 1444 682 617 1231 215 125
315 1754 682 617 1541 215 125
400 1703 770 705 1466 240 150
D
E
B
C
A
F

Related product manuals