EasyManua.ls Logo

Ecoflam BLU 250 - Page 44

Ecoflam BLU 250
Print Icon
To Next Page IconTo Next Page
To Next Page IconTo Next Page
To Previous Page IconTo Previous Page
To Previous Page IconTo Previous Page
Loading...
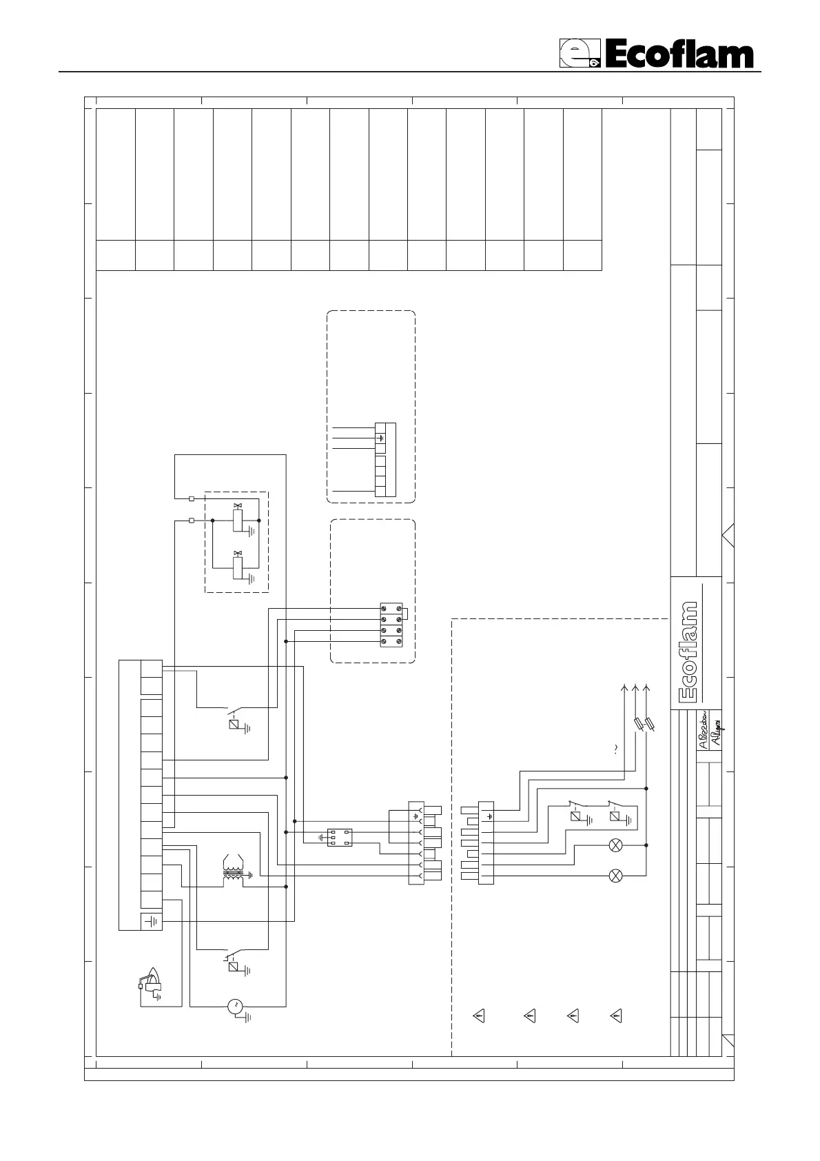
ABCD LB 429 Blu 170 ÷ 350 P /P AB
pag.44
COMUNICARE A TERZI IL CONTENUTO DEL PRESENTE.A TERMINE DI LEGGE E' VIETATO RIPRODURRE O
7
SATRONIC DLG 976
312 546 B98ACS1 S2
MOTORIDUTTORE
P
T
M
1
LINE
LOAD
T
P
PREDISPOSICION
CONTROL DE ESTANQUIDAD
PREVU POUR LE
CONTROLE D'ETANCHEITê
PREDISPOSED
LEKAGE CONTROL
PREDISPOSIZIONE
CONTROLLO DI TENUTA
BLUE
YELLOW-GREEN
BROWN
BLACK
ATTENTION
AL LADO.
NON ECOFLAM VER AL ESQUEMA
PARA INSTALACION EN CALDERAS
ECOFLAM, SUNRE LE SCHEMA A COTE.
CHAUDIERES NON FABRIQUER PAR
POUR INSTALLATION SUR
CUIDADO !
PER ACCOPIAMENTO CON CALDAIE
FOLLOW THE DIAGRAM SHOWN.
NOT MANUFACTURES BY ECOFLAM
FOR INSTALLATION ON BOILES
NON ECOFLAM, L'INSTALLATORE
DEVE EFFETTUARE I COLLEGAMENTI
RIPORTATI A LATO.
WARNING !
ATTENZIONE !
SPGmin
YVGS
ELECTROVALVULA GAS DE 1^ LLAMA
ELECTROVALVULA GAS DE SEGURIDAD
SICHERHEITSMAGNETVENTIL
ELECTROVANNE GAZ DE SECURITE
EXTRA SAFETY GAS SOLENOID VALVE
GASDRUCKWACHTER MIN.
PRESSOSTAT GAZ PRESSION MIN
GAS PRESSURE SWITCH MIN
PRESSOSTATO GAS DI MINIMA
ELETTROVALVOLA GAS DI SICUREZZA
PRESOSTATO GAS DE MINIMA POT.
YVG1
STS
SPA
STC
HLB
HL1
TV
MV
ER
Z
Q
ESPIA DE 1^ LLAMA
ELETTROVALVOLA GAS DI PRIMA FIAMMA
BOILER THERMOSTAT
TERMOSTATO CALDERA
KESSELTHERMOSTAT
THERMOSTAT CHAUDIERE
TERMOSTATO DE SEGURIDAD
SICHERHEITSTHERMOSTAT
THERMOSTAT DE SECURITE
SAFETY THERMOSTAT
TERMOSTATO DI SICUREZZA
GASMAGNETVENTIL
ELECTROVANNE GAZ PETITE ALLURE
FIRST STAGE GAS SOLENOID VALVE
STORANZEIGLAMPE
PRESSOSTAT AIR
LUCK-OUT LAMP
ESPIA DE BLOQUEO
LAMPE DE SECURITE
AIR PRESSURE SWITCH
PRESSOSTATO ARIA
LAMPADA DI BLOCCO
PRESOSTATO AIRE
TERMOSTATO CALDAIA
LUFTDRUCKWACHTER
FILTRO DE PROTECION ANTIDISTURBIO
MUTEUR VENTILATEUR
TRANSFORMADOR
MOTOR VENTILADOR
VENTILATOR MOTOR
ZUENDTRANSFORMATOR
TRANSFORMATEUR D'ALLUMAGE
IGNITION TRANSFORMER
1.ST FLAME LAMP
KONTROLLAMPE VON ERJTER FLAMME
LAMPE DE 1^ ALLURE
LAMPADA DI PRIMA FIAMMA
TRASFORMATORE
IONISATION PROBE
STORUNGSSCHUTZFITER
FILTRE ANTIPARASITES
ANTJAMMING FILTER
ELETTRODO DI RIVELAZIONE
FILTRO ANTIDISTURBO
FUHLERELEKTRODE
ELECTRODO DE IONIZACION
ELECTRODE D'IONISATION
MOTORE VENTILATORE
MOTOR FAN
INTERRUPTEUR GENERAL AVEC FUSIBLE
INTERRUTTORE GENERALE CON FUSIBILE
INTERRUPTOR GENERAL CON FUSIBLE
HAUPTSCHALTER MIT SICHERUNG
MAIN SWITCH WITH FUSE
00 01 02 03 04 05 06 07 08 09
A
00 01 02 03 04 05 06 07 08 09
B
C
D
E
A
B
C
D
E
S.p.A.
SOST.DA
IND.MOD.
SOST.IL
PROPRIETA' RISERVATA DELLA DITTA ECOFLAM S.p.A.
DESCRIZIONE MODIFICA
DISEGNATO
CONTROLLATO
DATA-FIRMA
DATA
FIRMA
DATA
FIRMA
COMUNICARE A TERZI IL CONTENUTO DEL PRESENTE.A TERMINE DI LEGGE E' VIETATO RIPRODURRE O
CONTROLLO DI TENUTAAPPARECCHIATURA
UFF.TECNICO-SETTORE ELETTRICO
DENOMINAZIONE
SIST. RIVELAZ. CODICE IND.MODIFICA
MOTORIDUTTORE
T
P
T
P
BEM04.079
BLU 170-250-350 P / BLU 170-250-350 P ECOMAX-DUOMAX
SATRONIC DLG 976 ER
12-02-2003
SPA
TV
ER
MV
HL1 HLB STS
STC
L
PE
N
Q
50 Hz 230 V
Z
SPGmin
YVG
P1
YVGS
N
PARA LA VERSION CON VPS 504
RESPECTAR LAS CONEXIONES ARRIBA
PER LA VERSIONE CON VPS 504
FOR VERSION WITH VPS 504
FOLLOW CONNECTIONS SHOWED ABOVE
POUR LA VERSION AVEC VPS 504
SUIVRE LES CONNEXIONS EN HAUT
FUR DIE ASFUHRUNG MIT VPS 504
DIE AUFGEZEIGTEN ANSCHLUSSE BEACHTEN
ATTENERSI AI COLLEGAMENTI DEL RIQUADRO
T7T6
BROWN
YELLOW-GREEN
BLUE
DUNGS VPS 504
B5T8 L1N
BLACK
S3B4 T2 NT1 L1
S3B4 T1T2 N L1

Related product manuals