EasyManua.ls Logo

Edwards iXH4545HT - Nitrogen Purge Data; Centre of Gravity and Levelling Foot Loads; Nitrogen Purge Data for Ixh and Ixl Systems

Edwards iXH4545HT
88 pages
Print Icon
To Next Page IconTo Next Page
To Next Page IconTo Next Page
To Previous Page IconTo Previous Page
To Previous Page IconTo Previous Page
Loading...
© Edwards Limited 2012. All rights reserved. Page 9
Edwards and the Edwards logo are trademarks of Edwards Limited.
Technical data
M561-00-880 Issue C
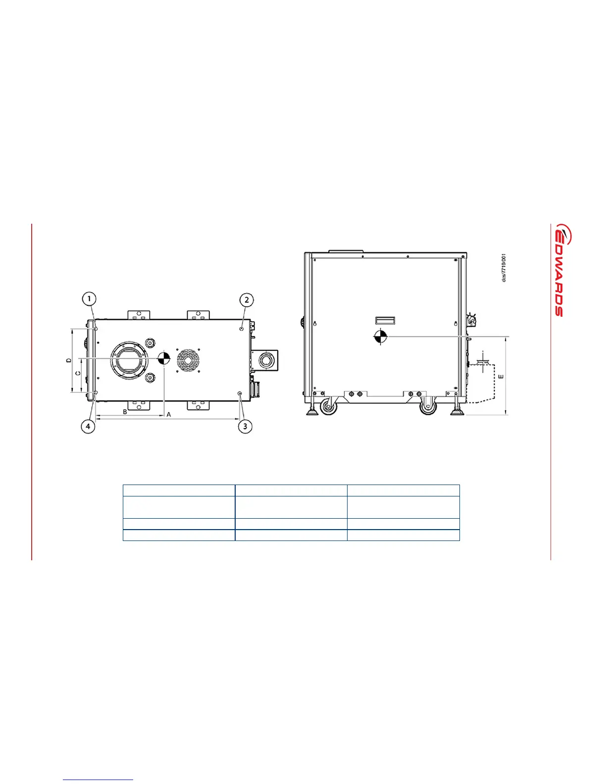
Figure 5 - Centre of gravity and levelling foot loads
2.4 Nitrogen purge data
Note: pXH systems do not have a nitrogen purge facility.
Table 5 - Nitrogen purge data for iXH and iXL systems
Characteristics Rating Units
Nitrogen supply pressure range 2.5-6.9 bar gauge
36 - 100 psi gauge
Nitrogen supply quality To ISO 8573
Nitrogen inlet connection 1/4 inch tube fitting

Table of Contents