EasyManua.ls Logo

elco 200 - Page 12

elco 200
Print Icon
To Next Page IconTo Next Page
To Next Page IconTo Next Page
To Previous Page IconTo Previous Page
To Previous Page IconTo Previous Page
Loading...
12 / FR
En cas de validation du produit à fonctionner sur
BUS, afin d'éviter tout risque de surcharge de
puissance, le produit n'alimentera pas le BUS (pa-
ramètre P33 du menu installateur réglé sur OFF),
sauf si le produit est un MASTER de cascade. Il
faudra par conséquent avoir au moins un autre
générateur alimentant le BUS pour compléter la
phase de démarrage.
Quand le produit est installé sur le BUS, tous les
paramètres pour la gestion de l'eau chaude sani-
taire, les paramètres spéciaux et les paramètres
de système sont partagés avec les autres produits
et il est possible d'utiliser une seule commande à
distance.
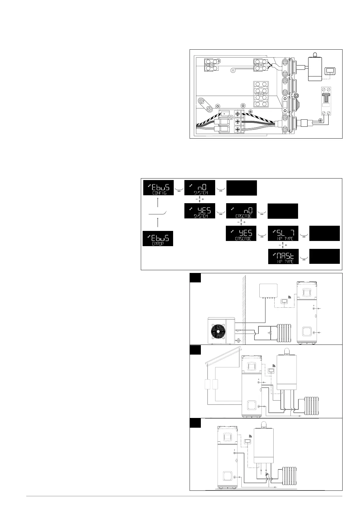
TYPOLOGIES D'INSTALLATION AVEC D'AUTRES GÉNÉRATEURS
THERMIQUES
1. Chaue-eau à thermodynamique et générateur de chauage
séparé (chaudière, pompe à chaleur ou hybride).
Les produits n'ont pas d'intégration mais peuvent être gérés par
une seule commande à distance.
2. Chaue-eau à thermodynamique avec générateur auxiliaire
(chaudière et/ou solaire) de support sur serpentin.
En cas d'installation avec chaudière comme générateur de sup-
port, afin que le chaue-eau à thermodynamique n'enclenche pas
pas à la résistance mais à la chaudière
, au moyen du BUS, régler
le paramètre P14 sur la valeur 3 (consulter la section MENU INS-
TALLATEUR).
Sauf si d'autres indications sont présentes dans le manuel du
générateur auxiliaire, le générateur auxiliaire ne capte pas les
sensoren du chaue-eau. Des sensoren supplémentaires sont par
conséquent nécessaires selon le schéma hydraulique.
3. Chaue-eau à thermodynamique en préchauage de généra-
teur de chauage combiné (chaudière ou hybride combi).
Afin d'activer la gestion de préchauage sur le service eau chaude
sanitaire, régler le paramètre P14 sur 2. Le chaue-eau et le géné-
rateur combi partagent dans cette installation le même réglage de
température sanitaire. La température du chaue-eau peut être
réduite dans des plages horaires préétablies au moyen du para-
mètre T MIN ou augmentée au moyen du paramètre PV SET en
cas de raccordement photovoltaïque.
Le générateur combi ne capte pas les sensoren du chaue-eau.
Des sensoren supplémentaires sont nécessaires, selon le schéma
hydraulique.
1.
2.
3.
Bus BridgeNet®
ASSISTANT LOGICIEL DE DÉMARRAGE
Ce produit est compatible avec Bus BridgeNet®.
Pour une installation correcte sur BUS, pendant la phase de démar
-
rage, sélectionner les paramètres SYSTEM et CASCADE comme
indiqué ci-dessous:
SYSTEM = NO
Le produit n'est pas raccordé au BUS ou n'est raccordé qu'à une
commande à distance.
SYSTEM = YES Cascade = NO
Le produit est installé dans un système sur bus avec d'autres gé
-
nérateurs thermiques compatibles (solaire, chaudière, hybride ou
pompe
à chaleur), dont un au moins alimentant le BUS. En cas de
présence d'une passerelle WI-FI sur BUS (installée sur commande
à distance ou sur générateur de chauage), les services de chauf
-
fage et d'eau chaude sanitaire peuvent être gérés à travers une
seule Application pour smart phone
.
SYSTEM = YES Cascade = YES
Le produit est installé dans un système en cascade (8 maximum)
pour un usage commercial ou collectif. Après avoir sélectionné
l'option CASCADE, confirmer si le produit est le produit MASTER
ou l'un des SLAVE de la cascade. Le BUS permet d'aligner tous les
paramètres de fonctionnement utilisateur du produit MASTER avec
les produits SLAVE.
Les paramètres SYSTEM et CASCADE ont un eet sur les paramètres
P33 et P34 du menu installateur.
CONNEXION BUS
Raccorder un câble au connecteur «BUS» afin que le chaue-eau
thermodynamique puisse être géré par une seule commande à dis-
tance sur BUS avec d'autres générateurs thermiques compatibles.
SG1
SG2
BUS
BUS
AUX
N
L
A
16 A
N
SET
SET SET
SET
INITIALIZATION
INITIALIZATION
INITIALIZATION
SETSET
SET
INITIALIZATION
MENU
PREMERE IL TASTO MENU
E RIPETERE LA PROCEDURA
DI CONFIGURAZIONE
*
*
APPUYEZ SUR LA TOUCHE MENU
ET RÉPÉTER LA PROCÉDURE
CONFIGURATION

Related product manuals