EasyManua.ls Logo

elco 200 - Page 46

elco 200
Print Icon
To Next Page IconTo Next Page
To Next Page IconTo Next Page
To Previous Page IconTo Previous Page
To Previous Page IconTo Previous Page
Loading...
46 /DE
Bei einer Betriebsfreigabe des Gerät für das BUS-
SYSTEM wird das
Gerät
zur Vermeidung einer
Überlast den BUS nicht versorgen (Parameter P33
des Monteur-Menüs auf OFF gesetzt), außer wenn
das Produkt ein MASTER der Kaskade ist. Es ist
daher notwendig, dass mindestens ein anderer
Wärmeerzeuger den BUS versorgt, um die Start-
phase abzuschließen.
Wenn das Gerät im BUS installiert ist, werden alle
Warmwasserparameter, Spezialparameter und die
Systemparameter mit den anderen Geräten geteilt
und es kann eine einzige Fernbedienung verwen-
det werden.
INSTALLATIONSARTEN MIT ANDEREN WÄRMEERZEUGERN
1. Warmwasser-Wärmepumpe und separater Wärmeerzeuger
(Heizkessel, Wärmepumpe oder Hybrid).
Die
Geräte
haben keine Zusatzheizung, sie können aber über eine
einzige Fernbedienung betrieben werden.
2. Warmwasser-Wärmepumpe mit Zusatzwärmeerzeuger (Heiz-
kessel und/oder Solar) an der Rohrschlange.
Damit bei einer Installation mit Heizkessel als Zusatzwärmeer-
zeuger die Warmwasser-Wärmepumpe den Kessel und nicht das
Heizelement über den BUS anfordert, muss der Parameter P14 auf
den Wert 3 gesetzt werden (siehe Abschnitt MONTEUR-MENÜ).
Sofern im Handbuch des Zusatzwärmeerzeugers nicht anders an-
gegeben, erkennt der Zusatzwärmeerzeuger nicht die Fühler des
Warmwasserbereiters, weshalb abhängig vom Hydraulikschalt-
plan Zusatzfühler erforderlich sind.
3. Warmwasser-Wärmepumpe zur Vorwärmung des kombinierten
Wärmeerzeugers (Kessel oder Kombi-Hybrid).
Zum Aktivieren der Vorwärmfunktion für den Warmwasserbetrieb
den Parameter P14 auf 2 setzen. Der Warmwasserbereiter und der
kombinierte Wärmeerzeuger haben bei dieser Installation die-
selbe Warmwasser-Temperatureinstellung. Die Temperatur des
Warmwasserbereiters kann zu voreingestellten Schaltzeiten über
den Parameter T MIN gesenkt oder über den Parameter PV SET
bei Anschluss einer Photovoltaikanlage erhöht werden.
Der Wärmeerzeuger erkennt die Fühler der Warmwasser-Wärme-
pumpe nicht. Es sind abhängig vom Hydraulikschaltplan Zusatz-
fühler erforderlich.
SET
SET SET
SET
INITIALIZATION
INITIALIZATION
INITIALIZATION
SETSET
SET
INITIALIZATION
MENU
PREMERE IL TASTO MENU
E RIPETERE LA PROCEDURA
DI CONFIGURAZIONE
*
*
1.
2.
3.
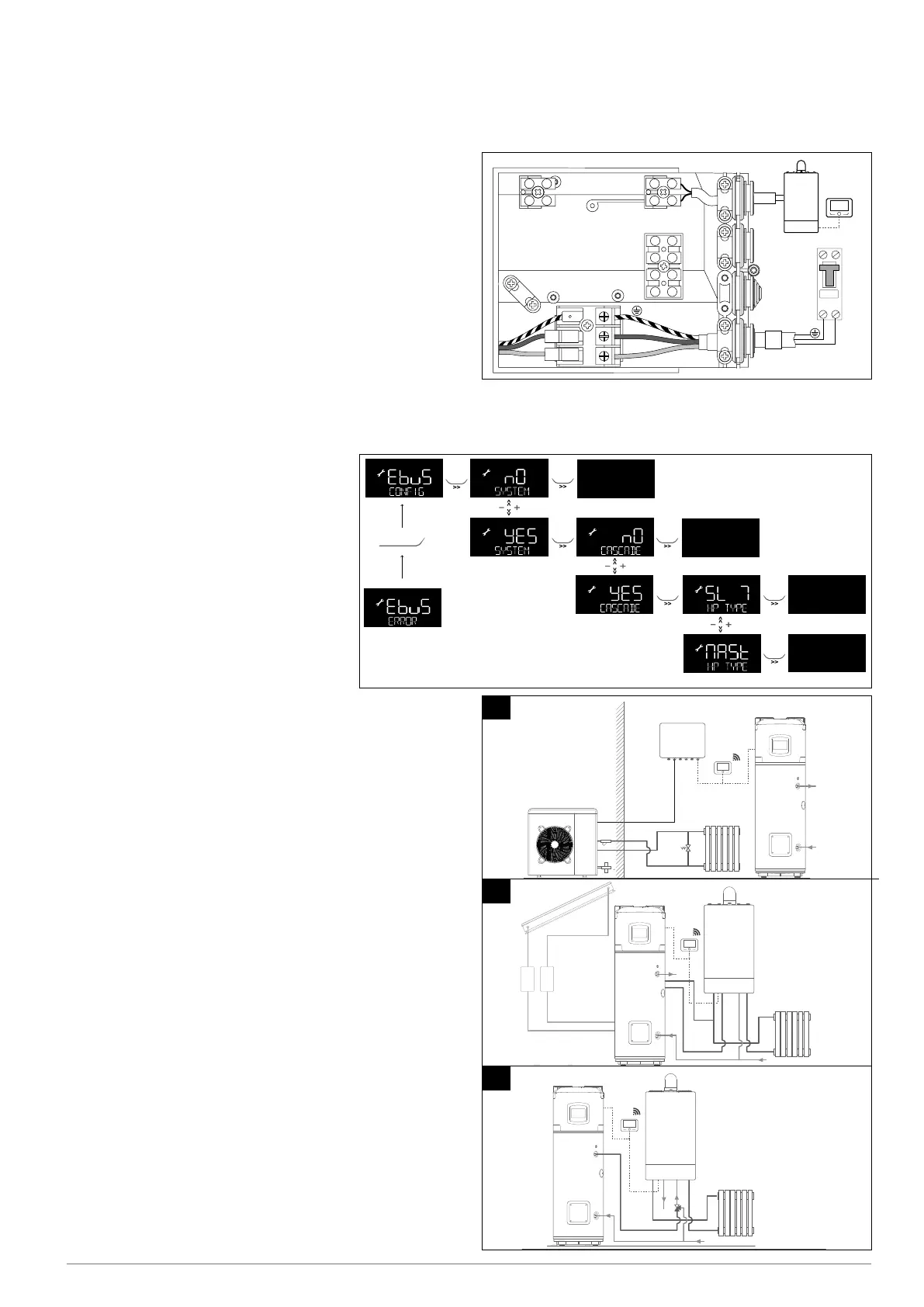
Bus BridgeNet®
START WIZARD
Dieses Gerät ist kompatibel mit Bus BridgeNet®.
Für eine korrekte Installation im BUS müssen in der Startphase die Para-
meter SYSTEM und CASCADE wie folgt eingestellt werden:
SYSTEM = NO
Das Gerät ist nicht am BUS angeschlossen oder ist ausschließlich an eine
Fernbedienung angeschlossen.
SYSTEM = YES Cascade = NO
Das Gerät ist in einem Bussystem mit anderen kompatiblen Wärmeerzeu-
gern (Solar, Kessel, Hydrid oder Wärmepumpe) installiert, wovon mindes-
tens einer den BUS versorgt. Bei einem vorhandenen WLAN-Gateway im
BUS (installiert an der Fernbedienung oder am Wärmeerzeuger) können
die Heiz- und Warmwasseranlage über eine einzige App mit dem Smart-
phone verwaltet werden
SYSTEM = YES Cascade = YES
Das Gerät ist in einem Kaskadensystem (max. 8) für den gewerblichen
oder Gemeinschaftsgebrauch installiert. Nach Einstellung der Option CA-
SCADE muss bestätigt werden, ob das Produkt der MASTER oder ein
SLAVE der Kaskade ist. Mit dem BUS können alle Nutzer-Betriebspara-
meter des MASTER Geräts mit den SLAVE Geräten angeglichen werden.
Die Parameter SYSTEM und CASCADE wirken sich auf die Parameter P33
und P34 des Monteur-Menüs aus.
BUS-ANSCHLUSS
Ein Kabel an den „BUS“-Verbinder anschließen, damit die Warm-
wasser-Wärmepumpe mit einer einzigen Fernbedienung im BUS
gemeinsam mit anderen kompatiblen Wärmeerzeugern betrieben
werden kann
.
SG1
SG2
BUS
BUS
AUX
N
L
A
16 A
N
* TASTE MENÜ DRÜCKEN
UND KONFIGURATIONSVORGANG
WIEDERHOLEN

Related product manuals