EasyManua.ls Logo

Electrolux 534074 - E7 Electrical Connections; Figure 10 Electrical Connections Diagram

Electrolux 534074
40 pages
Print Icon
To Next Page IconTo Next Page
To Next Page IconTo Next Page
To Previous Page IconTo Previous Page
To Previous Page IconTo Previous Page
Loading...
ENGLISH
25
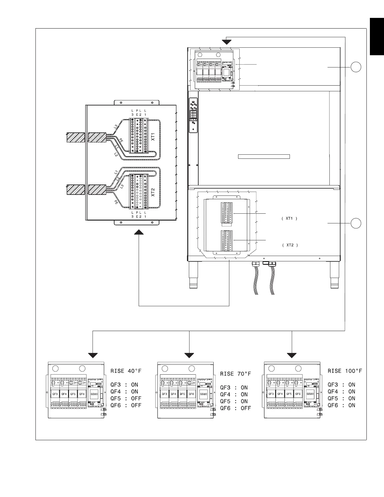
E7 Electrical connections
Figure 10 Electrical connections diagram
B
A
- Configuration of the electrical box according to the supply water temperature -
ELECTRICAL BOX (BOILER)
SUPPLY TERMINAL BOARD (BOILER)
SUPPLY TERMINAL BOARD (MACHINE)
POWER CABLES
POWER CABLE
(Boiler terminal board)
POWER CABLE
(Machine terminal board)

Table of Contents

Related product manuals