EasyManua.ls Logo

Electrolux 65G - Page 17

Electrolux 65G
20 pages
Print Icon
To Next Page IconTo Next Page
To Next Page IconTo Next Page
To Previous Page IconTo Previous Page
To Previous Page IconTo Previous Page
Loading...
17
FO 1061
Fig. 29
Fig. 28
A
b) unscrew screw 1 (Fig. 27) and take the oven burner out;
c) with a socket spanner 7 unscrew and remove the nozzle,
situated in the bottom of the oven, and replace it with the
proper one (see Technical data);
d) reassemble the burner following the same procedure
backwards.
Replacement of grill burner nozzle
To replace the grill burner nozzle, act as follows:
a) remove the screws, marked with letter "A" in Fig. 28;
b) take the grill burner out;
c) with a socket spanner n. 7, unscrew and remove the
nozzle, situated in the oven top, and replace it with the
proper one (see Technical data);
d) undo the fixing screw of the metal ring of primary air
adjustment and adjust the relevant opening (see diagram);
e) reassemble the burner following the same procedure
backwards.
Minimum level adjustment of oven
burner
After setting the oven on maximum temperature with closed
door for about 10 minutes, turn the knob of the thermostat on
MIN., remove the knob and:
in case of conversion from natural gas to LPG, tightly
screw the by-pass pin of thermostat;
converting from LPG to natural gas, unscrew the by-pass
pin, until a regular small flame is reached.
The oven burner doesn't need any primary air regulation.
Adjustment of thermostat by-pass
pin
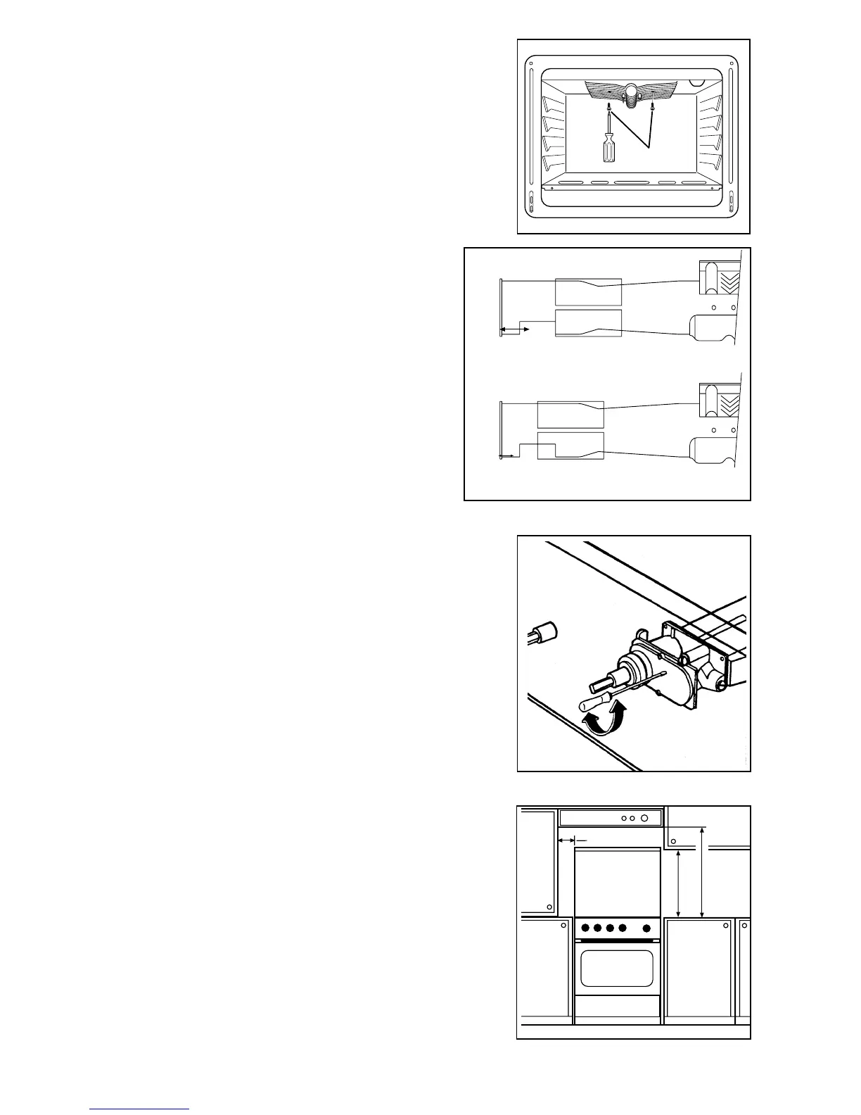
To reach the thermostat by-pass pin, act as follows:
- take out the knobs;
- remove the front panel;
- adjust the by-pass pin with a thin screwdriver, as shown in
Fig. 29;
- finally check that turning quickly the tap from maximum
position to minimum position, the flame does not go out;
- reassemble the front panel and the knobs.
WARNING
If the pressure of gas used is different (or variable) from that
foreseen, an appropriate pressure regulator must be installed on
the entry tube.
in case of pressure regulators for GPL are used, these must
conform to regulation.
Insertion possibility
In case of insertion of the appliance between kitchen units, the
dimensions to be respected are shown in Fig. 30.
When the kitchen is installed according to class 2, sub-class
1 (i.e. built-in) for the gas connection use only flexible metallic
tubes conforming to rules in force.
100
500
650
FO 1076
Fig. 30
Natural gas adjustment: full opening width
LPG adjustment: opening 10 mm wide
After the gas adjustment operation of the new appliance to
the new type of gas has been completed, please replace the
gas adjustment plate (located next to the connection pipe)
with the gas adjustment plate that relates to the new type of
gas being used.
The gas adjustment plate can be found in the envelope
containing the documents (e.g. the guarantee etc.).
Replacement of the gas adjustement plate

Related product manuals