EasyManua.ls Logo

Electrolux EDW 1503 - Electrical Diagrams; Electric Circuit Diagram Example

Electrolux EDW 1503
56 pages
Print Icon
To Next Page IconTo Next Page
To Next Page IconTo Next Page
To Previous Page IconTo Previous Page
To Previous Page IconTo Previous Page
Loading...
- 22 -
03.2004 R.K. 599 519 400 EN
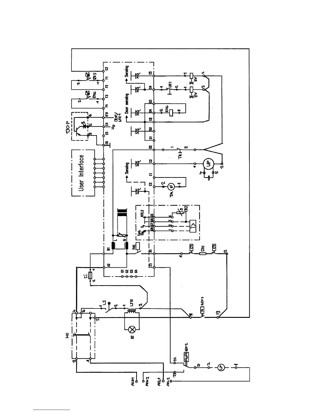
11.1. Electric circuit diagram
(Example EDW 1503, model with interior lighting)
55

Related product manuals